3-room apartment Les Saisies 8 people (17706)
Presentation
Beautiful luxury residence, close to all amenities, approx. 1 km from the centre of Les Saisies, with heated indoor swimming pool and free access to jacuzzi and fitness room (open at the height of the winter and summer seasons, located in building H).
3-room apartment located on the raised ground floor of the residence (approximately 15 external steps to climb), south-facing with balcony and A18 communal parking space.
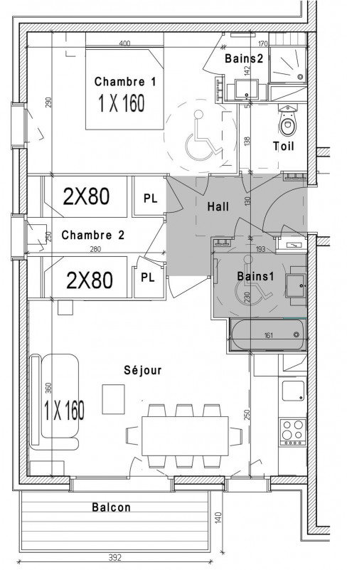
The apartment has a living room with a 160cm sofa bed, a master suite with a 160cm bed and en-suite shower room, a bedroom with 4x80cm double bunk beds (NB: the top bunk bed is not suitable for children under 6), a bathroom and separate WC. The kitchen opens onto the living room.
This apartment has a 2-star furnished tourist accommodation classification.
NB: Swimming pool access: summer 2024, open from 1 June to 31 August 2024.
Housekeeping category: J
3-room apartment located on the raised ground floor of the residence (approximately 15 external steps to climb), south-facing with balcony and A18 communal parking space.
The apartment has a living room with a 160cm sofa bed, a master suite with a 160cm bed and en-suite shower room, a bedroom with 4x80cm double bunk beds (NB: the top bunk bed is not suitable for children under 6), a bathroom and separate WC. The kitchen opens onto the living room.
This apartment has a 2-star furnished tourist accommodation classification.
NB: Swimming pool access: summer 2024, open from 1 June to 31 August 2024.
Housekeeping category: J
In Short
- ORIENTATION :
- South orientation
- Location :
- La traie district
- FLOOR FROM THE GROUND :
- Ground floor
- OUTSIDE :
- balcony
- SURFACE :
- 50 square meters
- MAXIMUM CAPACITY :
- 8 people
- ACCOMMODATION TYPE :
- three rooms apartment
- PETS :
- pets allowed
- pets allowed with extra charge
- small pets accepted
- Animaux acceptés sous réserve d'accord du propriétaire
- Type d'hébergeur :
- Professionnel
Details
- LIVING ROOM :
- 1 Pull-out sofa BZ bed 2 pers
- ROOM 1 :
- 1 double bed(s) (size: 160)
- with shower
- ROOM 2 :
- 2 banked beds
- Bedding :
- 6 double duvet(s)
- 8 pillow(s)
- BATHROOMS :
- 1 bathroom(s) with bathtub
- LAVATORY :
- 1 Separate toilets
Equipments & Services
- KITCHEN EQUIPMENTS :
- oven
- EQUIPMENTS :
- ski locker
- vacuum cleaner
- PARKING / GARAGE :
- indoor parking included
- indoor parking with extra charge
- outdoor private parking
- outdoor public parking
- WELL-BEING :
- heated indoor swimming pool
LIBELLE_SERV
- ASSURANCE ANNULATION :
- Pour plus de sérénité, nous vous conseillons de souscrire à notre assurance annulation proposée au moment de votre réservation.
On the Map
Destination
6 route de la Traie
Appartement 3 - RDC surélévé - Bâtiment C
73620
LES SAISIES
GPS coordinates
Latitude : 45.754759
Longitude : 6.542942































