Studio apartment Les Saisies 3 people (17550)
Presentation
Beautiful luxury residence, close to all amenities, approx. 1 km from the centre of Les Saisies, with heated indoor swimming pool and free access to jacuzzi and fitness room (open at the height of the winter and summer seasons, located in building H).
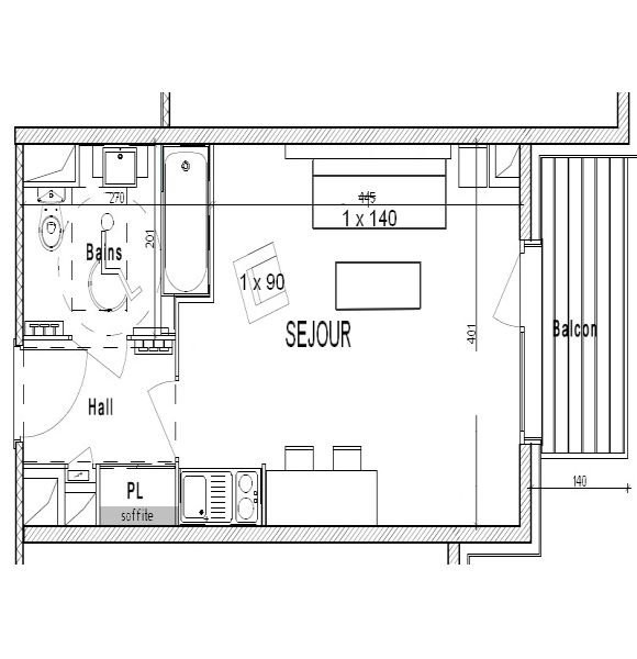
Studio apartment located on the 1st floor of the residence with lift (one floor to climb), east facing with balcony.
The apartment has a living room with a 140cm sofa bed and a 90cm armchair, a bathroom and a non-separate WC. The kitchenette opens onto the living room.
NB: Swimming pool access: summer 2024, open from 1 June to 31 August 2024.
Housekeeping category: C
Studio apartment located on the 1st floor of the residence with lift (one floor to climb), east facing with balcony.
The apartment has a living room with a 140cm sofa bed and a 90cm armchair, a bathroom and a non-separate WC. The kitchenette opens onto the living room.
NB: Swimming pool access: summer 2024, open from 1 June to 31 August 2024.
Housekeeping category: C
In Short
- ORIENTATION :
- East orientation
- FLOOR FROM THE GROUND :
- 1st floor
- OUTSIDE :
- balcony
- SURFACE :
- 27 square meters
- MAXIMUM CAPACITY :
- 3 people
- ACCOMMODATION TYPE :
- one room apartment
- PETS :
- pets not allowed
- Type d'hébergeur :
- Professionnel
Details
- LIVING ROOM :
- 1 chauffeuse 1 pers.
- 1 2-person convertible sofa bed
- Bedding :
- 1 duvet(s) single
- 2 single cover(s)
- 1 double duvet(s)
- 3 pillow(s)
- BATHROOMS :
- 1 bathroom(s) with bathtub
- LAVATORY :
- 1 Toilets inside the bathroom
Equipments & Services
- KITCHEN EQUIPMENTS :
- appareil à fondue
- EQUIPMENTS :
- ski locker
- vacuum cleaner
- PARKING / GARAGE :
- indoor parking with extra charge
- WELL-BEING :
- heated indoor swimming pool
LIBELLE_SERV
- ASSURANCE ANNULATION :
- Pour plus de sérénité, nous vous conseillons de souscrire à notre assurance annulation proposée au moment de votre réservation.
On the Map
Destination
6 Route de la Traie
Appartement 106 - 1er étage - Bâtiment H
73620
LES SAISIES
GPS coordinates
Latitude : 45.754759
Longitude : 6.542942



























