2 Room Apartment in Les Saisies 6 people (17585)
- 1
Presentation
Residence located in the centre of the resort, close to all amenities.
2-room apartment on the 2nd floor of the residence without lift (two floors to climb from the main entrance), south-facing with balcony.
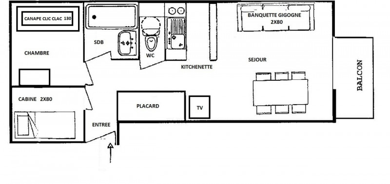
The apartment has a living room with a 2x80 pull-out sofa bed and an open-plan fitted kitchenette, a bedroom with a 140cm sofa bed, a cabin with 2x80cm bunk beds (NB: the top bunk is not suitable for children under 6), a bathroom and separate WC.
This apartment is officially classed as 1-star furnished holiday accommodation (Meublé de Tourisme).
Housekeeping category: E
2-room apartment on the 2nd floor of the residence without lift (two floors to climb from the main entrance), south-facing with balcony.
The apartment has a living room with a 2x80 pull-out sofa bed and an open-plan fitted kitchenette, a bedroom with a 140cm sofa bed, a cabin with 2x80cm bunk beds (NB: the top bunk is not suitable for children under 6), a bathroom and separate WC.
This apartment is officially classed as 1-star furnished holiday accommodation (Meublé de Tourisme).
Housekeeping category: E
In Short
- ORIENTATION :
- South orientation
- Location :
- Village center
- FLOOR FROM THE GROUND :
- 2nd floor
- OUTSIDE :
- balcony
- SURFACE :
- 32 square meters
- MAXIMUM CAPACITY :
- 6 people
- ACCOMMODATION TYPE :
- two rooms apartment
- PETS :
- pets not allowed
- Type d'hébergeur :
- Professionnel
Details
- LIVING ROOM :
- 1 Pull-out trundle sofa bed 2 pers.
- CABIN :
- 2 banked beds
- ROOM 1 :
- 1 Pull-out clic-clac sofa bed 2 pers.
- Bedding :
- 4 single cover(s)
- 2 double duvet(s)
- 6 pillow(s)
- BATHROOMS :
- 1 bathroom(s) with bathtub
- LAVATORY :
- 1 Separate toilets
Equipments & Services
- KITCHEN EQUIPMENTS :
- dishwasher
- fridge
- EQUIPMENTS :
- ski locker
- vacuum cleaner
- PARKING / GARAGE :
- indoor parking with extra charge
LIBELLE_SERV
- ASSURANCE ANNULATION :
- Pour plus de sérénité, nous vous conseillons de souscrire à notre assurance annulation proposée au moment de votre réservation.
On the Map
Destination
11 Rue du Mirantin
Appartement 40 - 2ème étage - Bâtiment D
73620
LES SAISIES
GPS coordinates
Latitude : 45.757585
Longitude : 6.539307
Rates and Availabilities
Opinion
Score on website :
(2 opinion customer)
3.5
/ 5
Opinion customer
February 2025
Jean-Michel
Plus de 55 ans
En famille
Score :
4
/ 5
Aménagement intérieur (décoration, mobilier...)
Equipements (vaisselle et ustensiles de cuisine, électroménager...)
Confort de la literie
Entretien/ propreté
Situation géographique
Rapport qualité-prix
Review written on 08/02/2025
February 2023
Zina
De 35 à 44 ans
En famille
Score :
3
/ 5
Aménagement intérieur (décoration, mobilier...)
Equipements (vaisselle et ustensiles de cuisine, électroménager...)
Confort de la literie
Entretien/ propreté
Situation géographique
Rapport qualité-prix
Review written on 27/02/2023
Score according to profile





























