Studio Apartment in Les Saisies 6 people (17745)
Presentation
Residence located in the centre of the resort, close to all amenities.
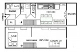
Studio apartment with mezzanine and cabin located on the 2nd floor of the residence without lift, south facing with balcony + parking space.
The apartment has a living room and open-plan fitted kitchenette, a cabin with 2x70 bunk beds (NB: the top bunk is not suitable for children under 6), a mezzanine with a 140cm sofa bed and an alcove with a 140cm bed (separated by a curtain), a shower room and separate WC.
This apartment is officially classed as 1-star furnished holiday accommodation (Meublé de Tourisme).
Housekeeping category: E
Studio apartment with mezzanine and cabin located on the 2nd floor of the residence without lift, south facing with balcony + parking space.
The apartment has a living room and open-plan fitted kitchenette, a cabin with 2x70 bunk beds (NB: the top bunk is not suitable for children under 6), a mezzanine with a 140cm sofa bed and an alcove with a 140cm bed (separated by a curtain), a shower room and separate WC.
This apartment is officially classed as 1-star furnished holiday accommodation (Meublé de Tourisme).
Housekeeping category: E
In Short
- ORIENTATION :
- South orientation
- Location :
- Village center
- FLOOR FROM THE GROUND :
- 2nd floor
- OUTSIDE :
- balcony
- SURFACE :
- 28.5 square meters
- MAXIMUM CAPACITY :
- 6 people
- ACCOMMODATION TYPE :
- one room apartment
- PETS :
- pets allowed
- pets allowed with extra charge
- small pets accepted
- Animaux acceptés sous réserve d'accord du propriétaire
- Type d'hébergeur :
- Professionnel
Details
- CABIN :
- 2 banked beds
- Alcove :
- 1 double bed(s) (size: 140)
- MEZZZANINE :
- 1 Pull-out sofa BZ bed 2 pers
- BATHROOMS :
- 1 bathroom(s) with shower
- LAVATORY :
- 1 Separate toilets
Equipments & Services
- KITCHEN EQUIPMENTS :
- dishwasher
- fridge
- EQUIPMENTS :
- ski locker
- vacuum cleaner
- PARKING / GARAGE :
- indoor parking included
- indoor parking with extra charge
- outdoor private parking
- outdoor public parking
LIBELLE_SERV
- ASSURANCE ANNULATION :
- Pour plus de sérénité, nous vous conseillons de souscrire à notre assurance annulation proposée au moment de votre réservation.
On the Map
Destination
LES SAISIES
GPS coordinates
Latitude : 45.756672
Longitude : 6.540976
Rates and Availabilities
Opinion
Score on website :
(2 opinion customer)
4.5
/ 5
Opinion customer
December 2023
CLAIRE
De 35 à 44 ans
En famille
Score :
5
/ 5
Appartement très bien équipé et proche navette et commerces.
Matelas un peu dur
Aménagement intérieur (décoration, mobilier...)
Equipements (vaisselle et ustensiles de cuisine, électroménager...)
Confort de la literie
Entretien/ propreté
Situation géographique
Rapport qualité-prix
Review written on 01/01/2024
December 2022
Stéphane
De 35 à 44 ans
En famille
Score :
4
/ 5
Garage intérieur un plus
Aménagement intérieur (décoration, mobilier...)
Equipements (vaisselle et ustensiles de cuisine, électroménager...)
Confort de la literie
Entretien/ propreté
Situation géographique
Rapport qualité-prix
Review written on 02/01/2023
Score according to profile































