2 Room Apartment in Les Saisies 6 people (17394)
Presentation
Residence at the top of the resort (Avenue des Cîmes)
The residence faces south, with views of Mont Bisanne and the Beaufortain massif.
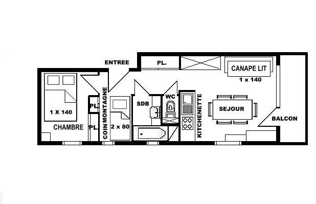
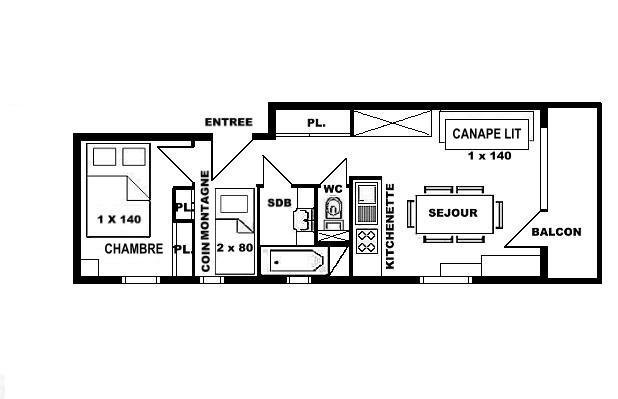
2-room apartment with sleeping alcove on the 2nd floor of the residence without lift (1 staircase to go down outside), south-facing with balcony.
The apartment has a fully-equipped kitchenette, a living room with a 140cm sofa bed, a bedroom with a 140cm bed, a sleeping alcove with 2x80cm bunk beds and a bathroom with separate toilet (N.B.: the top bunk is not suitable for children under 6).
This apartment is officially classed as 2-star furnished holiday accommodation (Meublé de Tourisme).
It was also awarded the Les Saisies 4 diamond accommodation quality label.
Housekeeping category: E
The residence faces south, with views of Mont Bisanne and the Beaufortain massif.
2-room apartment with sleeping alcove on the 2nd floor of the residence without lift (1 staircase to go down outside), south-facing with balcony.
The apartment has a fully-equipped kitchenette, a living room with a 140cm sofa bed, a bedroom with a 140cm bed, a sleeping alcove with 2x80cm bunk beds and a bathroom with separate toilet (N.B.: the top bunk is not suitable for children under 6).
This apartment is officially classed as 2-star furnished holiday accommodation (Meublé de Tourisme).
It was also awarded the Les Saisies 4 diamond accommodation quality label.
Housekeeping category: E
In Short
- ORIENTATION :
- South orientation
- Location :
- Hauts-Lieux district
- FLOOR FROM THE GROUND :
- 2nd floor
- OUTSIDE :
- balcony
- SURFACE :
- 36 square meters
- MAXIMUM CAPACITY :
- 6 people
- ACCOMMODATION TYPE :
- two rooms apartment
- PETS :
- pets not allowed
- VIEW :
- mountain
- Type d'hébergeur :
- Professionnel
Details
- LIVING ROOM :
- 1 Pull-out trundle sofa bed 2 pers.
- 1 2-person convertible sofa bed
- CABIN :
- 2 banked beds
- ROOM 1 :
- 1 double bed(s) (size: 140)
- Bedding :
- 2 duvet(s) single
- 2 single cover(s)
- 2 double duvet(s)
- 6 pillow(s)
- BATHROOMS :
- 1 bathroom(s) with bathtub
- towel dryer
- LAVATORY :
- 1 Separate toilets
Equipments & Services
- KITCHEN EQUIPMENTS :
- oven
- appareil à fondue
- EQUIPMENTS :
- ski locker
- vacuum cleaner
- MULTIMEDIA EQUIPMENTS :
- Free WIFI in the accommodation
- PARKING / GARAGE :
- indoor parking with extra charge
LIBELLE_SERV
- ASSURANCE ANNULATION :
- Pour plus de sérénité, nous vous conseillons de souscrire à notre assurance annulation proposée au moment de votre réservation.
On the Map
Destination
100 chemin de la ravire
Appartement 9 - 2ème étage
73620
LES SAISIES
GPS coordinates
Latitude : 45.756992
Longitude : 6.544084
- DISTANCES :
- 800 m du centre station Les Saisies
- 200 m des pistes de ski alpin
- 1200 m des pistes de ski de fond
- 150 m d'un arrêt navette (en hiver)
Rates and Availabilities
Opinion
Score on website :
(3 opinion customer)
4.67
/ 5
Opinion customer
February 2025
Fabien
De 45 à 55 ans
En famille
Score :
4
/ 5
Aménagement intérieur (décoration, mobilier...)
Equipements (vaisselle et ustensiles de cuisine, électroménager...)
Confort de la literie
Entretien/ propreté
Situation géographique
Rapport qualité-prix
Review written on 26/02/2025
July 2023
Régis
De 45 à 55 ans
En famille
Score :
5
/ 5
Aménagement intérieur (décoration, mobilier...)
Equipements (vaisselle et ustensiles de cuisine, électroménager...)
Confort de la literie
Entretien/ propreté
Situation géographique
Rapport qualité-prix
Review written on 31/07/2023
Score according to profile






























