2 Room Apartment in Les Saisies 6 people (17485)
Presentation
Lovely, comfortable residence with a mountain feel, ideally located close to the slopes and Nordic ski area.
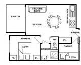
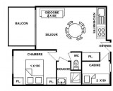
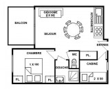
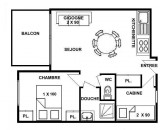
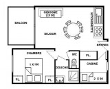
2-room apartment with cabin located on the ground floor of the residence without lift, south/west facing with balcony + one covered parking space (H.2.05m; L.4.65m; L.2.35 Bât Garage B).
The apartment has a living room with a 2x90 pull-out sofa bed and an open-plan fitted kitchen, a bedroom with a 160cm bed, a cabin with 2x90cm bunk beds (NB: the top bunk bed is not suitable for children under 6), a shower room and separate WC.
This apartment is officially classed as 2-star furnished holiday accommodation (Meublé de Tourisme).
Housekeeping category: F
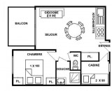
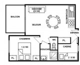
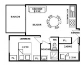
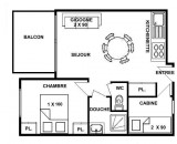
2-room apartment with cabin located on the ground floor of the residence without lift, south/west facing with balcony + one covered parking space (H.2.05m; L.4.65m; L.2.35 Bât Garage B).
The apartment has a living room with a 2x90 pull-out sofa bed and an open-plan fitted kitchen, a bedroom with a 160cm bed, a cabin with 2x90cm bunk beds (NB: the top bunk bed is not suitable for children under 6), a shower room and separate WC.
This apartment is officially classed as 2-star furnished holiday accommodation (Meublé de Tourisme).
Housekeeping category: F
In Short
- Location :
- Col district
- FLOOR FROM THE GROUND :
- Ground floor
- OUTSIDE :
- balcony
- SURFACE :
- 32 square meters
- MAXIMUM CAPACITY :
- 6 people
- ACCOMMODATION TYPE :
- two rooms apartment
- PETS :
- pets not allowed
- Type d'hébergeur :
- Professionnel
Details
- LIVING ROOM :
- 1 Pull-out trundle sofa bed 2 pers.
- CABIN :
- 2 banked beds
- ROOM 1 :
- 1 double bed(s) (size: 160)
- BATHROOMS :
- 1 bathroom(s) with shower
- LAVATORY :
- 1 Separate toilets
Equipments & Services
- KITCHEN EQUIPMENTS :
- glass-ceramic hobs
- dishwasher
- fridge
- EQUIPMENTS :
- ski locker
- vacuum cleaner
- PARKING / GARAGE :
- indoor parking included
- indoor parking with extra charge
- outdoor private parking
- outdoor public parking
LIBELLE_SERV
- ASSURANCE ANNULATION :
- Pour plus de sérénité, nous vous conseillons de souscrire à notre assurance annulation proposée au moment de votre réservation.
On the Map
Destination
118 chemin de l'echellier
Appartement 3 - RDC - Bâtiment B
73620
LES SAISIES
GPS coordinates
Latitude : 45.75914
Longitude : 6.533048
- DISTANCES :
- 100 m du centre station Les Saisies
Rates and Availabilities
Opinion
Score on website :
(7 opinion customer)
4.29
/ 5
Opinion customer
July 2025
Delphine
De 45 à 55 ans
En famille
Score :
5
/ 5
Aménagement intérieur (décoration, mobilier...)
Equipements (vaisselle et ustensiles de cuisine, électroménager...)
Confort de la literie
Entretien/ propreté
Situation géographique
Rapport qualité-prix
Review written on 22/07/2025
April 2025
Julien
De 35 à 44 ans
En famille
Score :
3
/ 5
Aménagement intérieur (décoration, mobilier...)
Equipements (vaisselle et ustensiles de cuisine, électroménager...)
Confort de la literie
Entretien/ propreté
Situation géographique
Rapport qualité-prix
Review written on 14/04/2025
Score according to profile





























