2 Room Apartment in Les Saisies 6 people (17573)
Presentation
Small residence located halfway between the resort centre and the ski lifts at the Carrets car park.
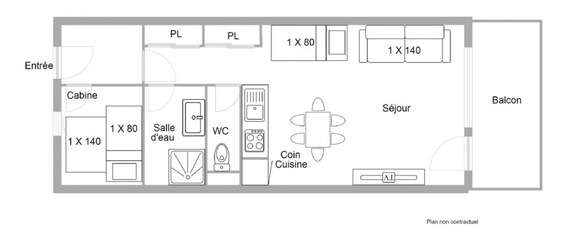
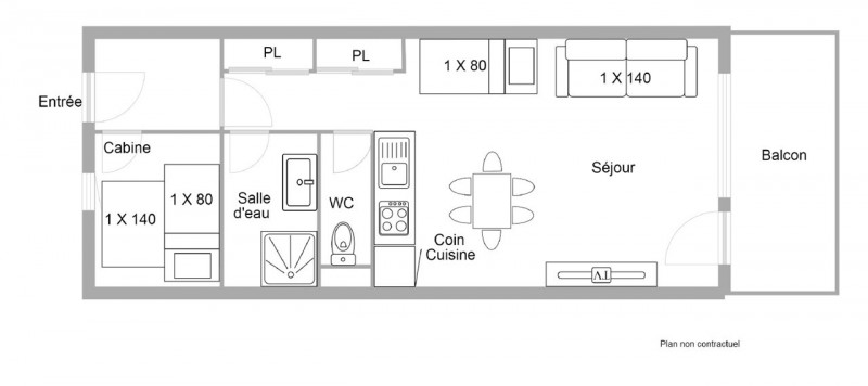
2-room apartment on the 1st floor of the residence without lift (1 floor to climb for access), south-facing with balcony.
The apartment has a living room with a rapido 140 sofa bed, a foldaway 80cm bed and an open-plan fully-equipped kitchenette, a bedroom with 1 140cm bed and a perpendicular 80cm bunk bed (NB: the top bunk is not suitable for children under 6), a shower room and separate WC.
Housekeeping category: D
2-room apartment on the 1st floor of the residence without lift (1 floor to climb for access), south-facing with balcony.
The apartment has a living room with a rapido 140 sofa bed, a foldaway 80cm bed and an open-plan fully-equipped kitchenette, a bedroom with 1 140cm bed and a perpendicular 80cm bunk bed (NB: the top bunk is not suitable for children under 6), a shower room and separate WC.
Housekeeping category: D
In Short
- ORIENTATION :
- South orientation
- Location :
- La traie district
- FLOOR FROM THE GROUND :
- 1st floor
- OUTSIDE :
- balcony
- SURFACE :
- 38 square meters
- MAXIMUM CAPACITY :
- 6 people
- ACCOMMODATION TYPE :
- two rooms apartment
- PETS :
- pets not allowed
- Type d'hébergeur :
- Professionnel
Details
- LIVING ROOM :
- 1 rabattable single bed(s) (size: 80)
- 1 2-person convertible sofa bed
- ROOM 1 :
- 1 banked beds
- 1 double bed(s) (size: 140)
- Bedding :
- 2 duvet(s) single
- 2 double duvet(s)
- 6 pillow(s)
- 1 bolster(s)
- BATHROOMS :
- 1 bathroom(s) with shower
- LAVATORY :
- 1 Separate toilets
Equipments & Services
- KITCHEN EQUIPMENTS :
- appareil à fondue
- EQUIPMENTS :
- vacuum cleaner
- PARKING / GARAGE :
- indoor parking with extra charge
LIBELLE_SERV
- ASSURANCE ANNULATION :
- Pour plus de sérénité, nous vous conseillons de souscrire à notre assurance annulation proposée au moment de votre réservation.
On the Map
Destination
Rue de Chenavelle
Appartement 4 - 1er étage
73620
LES SAISIES
GPS coordinates
Latitude : 45.755427
Longitude : 6.54282
Rates and Availabilities
Opinion
Score on website :
(4 opinion customer)
4
/ 5
Opinion customer
March 2025
carole
De 35 à 44 ans
En famille
Score :
4
/ 5
Aménagement intérieur (décoration, mobilier...)
Equipements (vaisselle et ustensiles de cuisine, électroménager...)
Confort de la literie
Entretien/ propreté
Situation géographique
Rapport qualité-prix
Review written on 03/03/2025
February 2025
Philippe
Plus de 55 ans
Entre ami(e)s
Score :
3
/ 5
Le lit des parents pas confortable manque de lumière dans la salle de bain
Aménagement intérieur (décoration, mobilier...)
Equipements (vaisselle et ustensiles de cuisine, électroménager...)
Confort de la literie
Entretien/ propreté
Situation géographique
Rapport qualité-prix
Review written on 10/02/2025
Score according to profile





























