2 Room Apartment in Les Saisies 8 people (17565)
Presentation
Residence in the centre of the resort, ski lift very close by
The residence faces south, facing Mont Bisanne.
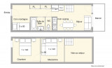
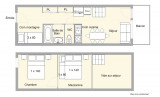
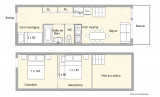
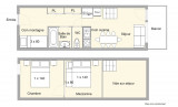
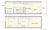
2-room apartment with mezzanine and sleeping alcove on the first floor of the residence without lift (1 floor to climb for access), south-facing with balcony.
The apartment has a fully-equipped kitchenette, a living room, an alcove with 2x80 bunk beds and 1x80 pull-out bed, a bathroom with separate toilet, upstairs a mezzanine with a 140cm bed and a 90cm pull-out bed and a bedroom with a 140cm bed (N.B.: the top bunk is not suitable for children under 6).
Housekeeping category: H
The residence faces south, facing Mont Bisanne.
2-room apartment with mezzanine and sleeping alcove on the first floor of the residence without lift (1 floor to climb for access), south-facing with balcony.
The apartment has a fully-equipped kitchenette, a living room, an alcove with 2x80 bunk beds and 1x80 pull-out bed, a bathroom with separate toilet, upstairs a mezzanine with a 140cm bed and a 90cm pull-out bed and a bedroom with a 140cm bed (N.B.: the top bunk is not suitable for children under 6).
Housekeeping category: H
In Short
- ORIENTATION :
- South orientation
- Location :
- Village center
- FLOOR FROM THE GROUND :
- 1st floor
- OUTSIDE :
- balcony
- SURFACE :
- 51 square meters
- MAXIMUM CAPACITY :
- 8 people
- ACCOMMODATION TYPE :
- two rooms apartment
- PETS :
- pets not allowed
- VIEW :
- mountain
- Type d'hébergeur :
- Professionnel
Details
- ROOM 1 :
- 1 double bed(s) (size: 140)
- Alcove :
- 1 drawer single bed(s)
- 2 banked beds
- MEZZZANINE :
- 1 drawer single bed(s)
- 1 double bed(s) (size: 140)
- Bedding :
- 3 duvet(s) single
- 1 single cover(s)
- 2 double cover(s)
- 8 pillow(s)
- BATHROOMS :
- 1 bathroom(s) with bathtub
- LAVATORY :
- 1 Separate toilets
Equipments & Services
- KITCHEN EQUIPMENTS :
- oven
- EQUIPMENTS :
- ski locker
- vacuum cleaner
- PARKING / GARAGE :
- indoor parking with extra charge
LIBELLE_SERV
- ASSURANCE ANNULATION :
- Pour plus de sérénité, nous vous conseillons de souscrire à notre assurance annulation proposée au moment de votre réservation.
Destination
41 Chemin du Cristal
Appartement 13 - 1er étage
73620
LES SAISIES
GPS coordinates
Latitude : 45.757022
Longitude : 6.537766
Rates and Availabilities
Opinion
Score on website :
(2 opinion customer)
4
/ 5
Opinion customer
February 2024
Patrick
Plus de 55 ans
En famille
Score :
4
/ 5
Aménagement intérieur (décoration, mobilier...)
Equipements (vaisselle et ustensiles de cuisine, électroménager...)
Confort de la literie
Entretien/ propreté
Situation géographique
Rapport qualité-prix
Review written on 12/02/2024
December 2023
Kjetil
De 35 à 44 ans
En famille
Score :
4
/ 5
Aménagement intérieur (décoration, mobilier...)
Equipements (vaisselle et ustensiles de cuisine, électroménager...)
Confort de la literie
Entretien/ propreté
Situation géographique
Rapport qualité-prix
Review written on 01/01/2024
Score according to profile





























