2 Room Apartment in Les Saisies 8 people (17754)
- 1
Presentation
Small residence located at the top of the resort, with views of the Beaufortain massif, Mont Bisanne and the resort of Les Saisies.
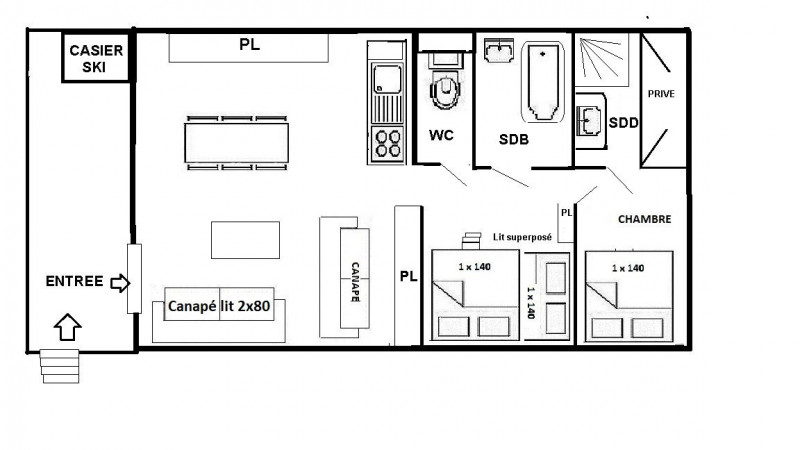
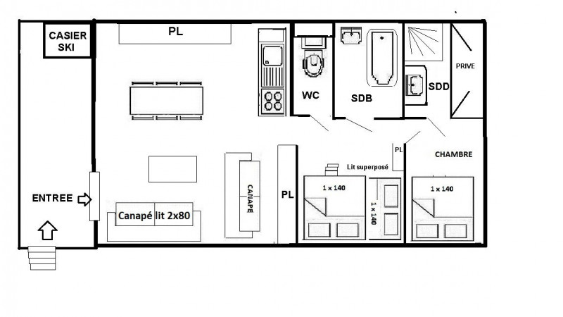
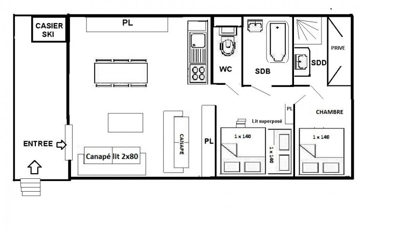
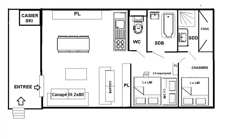
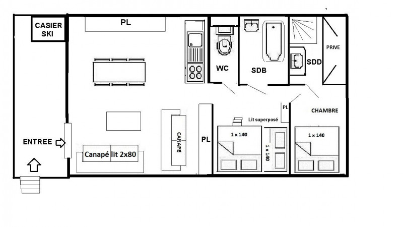
2-room apartment + sleeping alcove located on the ground floor of the residence (one staircase to go down from the outside, then access via a small 15m path to the flat) facing south with solarium terrace.
The apartment has a living room with a 2x80 pull-out sofa bed and open-plan fitted kitchen, a master suite with a 140cm bed (en-suite shower room), a sleeping alcove with a sofa bed and a 2x140cm bunk bed (NB: the top bunk is not suitable for children under 6), a bathroom and separate WC.
This apartment is officially classed as 1-star furnished holiday accommodation (Meublé de Tourisme).
Housekeeping category: F
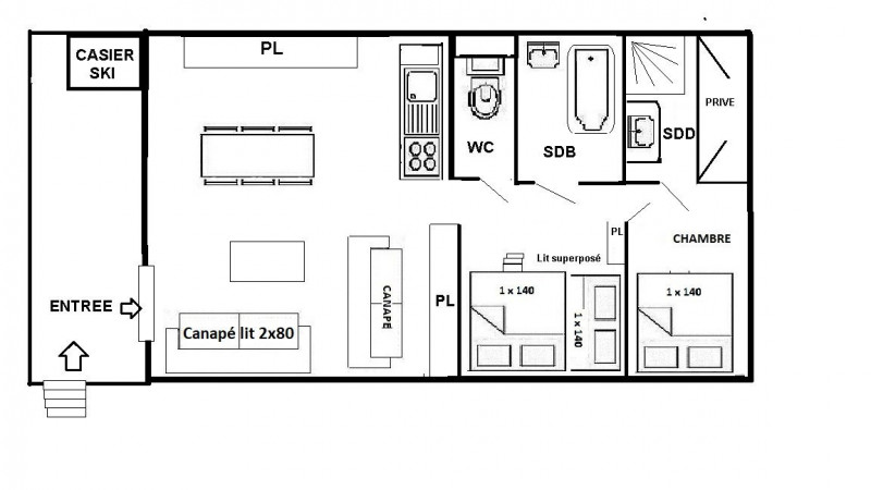
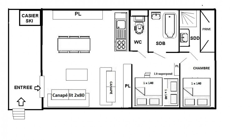
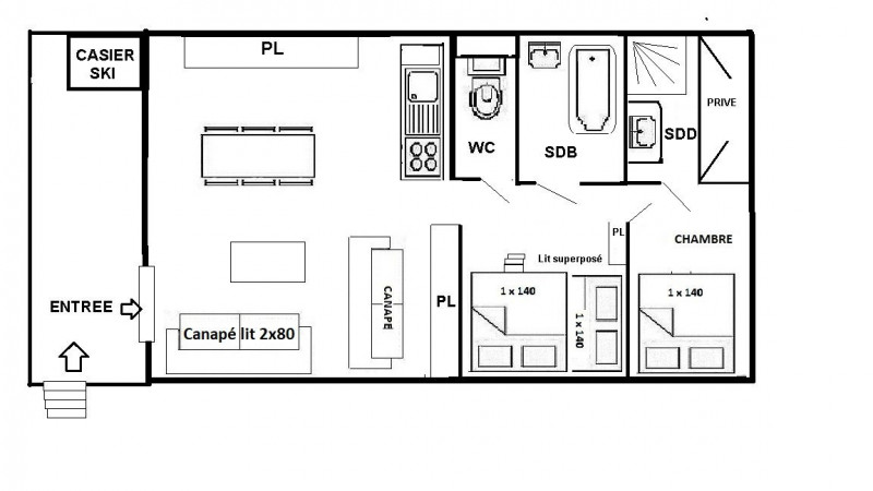
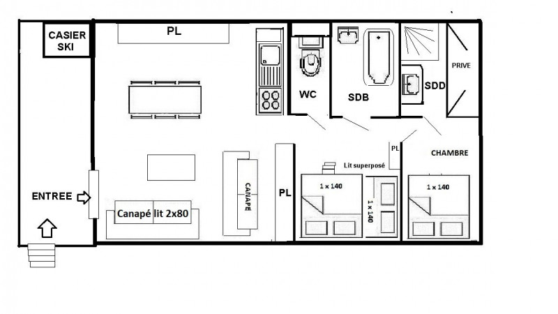
2-room apartment + sleeping alcove located on the ground floor of the residence (one staircase to go down from the outside, then access via a small 15m path to the flat) facing south with solarium terrace.
The apartment has a living room with a 2x80 pull-out sofa bed and open-plan fitted kitchen, a master suite with a 140cm bed (en-suite shower room), a sleeping alcove with a sofa bed and a 2x140cm bunk bed (NB: the top bunk is not suitable for children under 6), a bathroom and separate WC.
This apartment is officially classed as 1-star furnished holiday accommodation (Meublé de Tourisme).
Housekeeping category: F
In Short
- ORIENTATION :
- South orientation
- Location :
- Village center
- FLOOR FROM THE GROUND :
- Ground floor
- OUTSIDE :
- terrace
- SURFACE :
- 51 square meters
- MAXIMUM CAPACITY :
- 8 people
- ACCOMMODATION TYPE :
- two rooms apartment
- PETS :
- pets not allowed
- VIEW :
- mountain
- Type d'hébergeur :
- Professionnel
Details
- LIVING ROOM :
- 1 Pull-out trundle sofa bed 2 pers.
- CABIN :
- banked beds
- 2 double bed(s) (size: 140)
- ROOM 1 :
- 1 double bed(s) (size: 140)
- with shower
- Bedding :
- 4 double duvet(s)
- 8 pillow(s)
- BATHROOMS :
- 1 bathroom(s) with bathtub
- LAVATORY :
- 1 Separate toilets
Equipments & Services
- KITCHEN EQUIPMENTS :
- oven
- EQUIPMENTS :
- ski locker
- vacuum cleaner
- PARKING / GARAGE :
- indoor parking with extra charge
LIBELLE_SERV
- ASSURANCE ANNULATION :
- Pour plus de sérénité, nous vous conseillons de souscrire à notre assurance annulation proposée au moment de votre réservation.
Destination
186 Chemin de la Ravire
Appartement 3 - RDC
73620
LES SAISIES
GPS coordinates
Latitude : 45.756781
Longitude : 6.545339
Rates and Availabilities
Opinion
Score on website :
(1 opinion customer)
5
/ 5
Opinion customer
March 2025
Jean-Marc
Plus de 55 ans
En famille
Score :
5
/ 5
Manque un livret d'accueil qui préciserait les modalités de mise en route et arrêt des chauffages individuels ainsi que du réfrigérateur et qui signerait la présence de tous les ustensiles mis à disposition
Aménagement intérieur (décoration, mobilier...)
Equipements (vaisselle et ustensiles de cuisine, électroménager...)
Confort de la literie
Entretien/ propreté
Situation géographique
Rapport qualité-prix
Review written on 25/03/2025
01/04/2025
14h59
Elisa Maitre replied
Merci d'avoir pris le temps de partager votre retour. Nous avons bien pris en compte votre remarque et l'avons transmise au propriétaire du logement afin qu'il puisse en tenir compte. Votre avis nous aide à améliorer l'expérience de nos voyageurs. Nous espérons avoir l'occasion de vous accueillir à nouveau aux Saisies ! 😊
Score according to profile































