2 rooms (1 bedroom) - CRISTAL 2 (CRI215)
Presentation
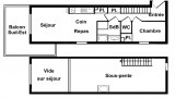
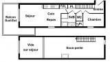
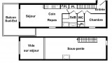
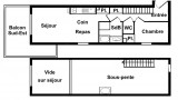
- Bel appartement type 2 PIECES + SOUS PENTE
- Surface : 52 m² dont 22 m² de surface utile à moins d'1.80 m, GRAND BALCON D'ANGLE PLEIN SUD : 9 m² ,
- Etage : 2 ème,
- Accès : direct au 1er, monter un étage,
- Couchages : 4/6
- petite chambre ( inferieur à 9m²): 1 lit de 140,
- sous pente (mansardée): 1 lit 140 + 1 lit 1 pers + 1 lit tiroir,
- Salle de bains : douche, WC séparés,
- Exposition : plein sud et est, VUE FANTASTIQUE sur les pistes et le massif du BEAUFORTAIN,
- Equipements particuliers : télévision, lave vaisselle, chaîne HiFi, appareil à pierrade, cafetière électrique, grille pain, salon de jardin...
- LITERIE :7 oreillers, 6 couvertures polaires
- REMARQUES
- Un casier à skis est à votre disposition,
- Appartement tout équipé, ( non fourni : draps et linge de maison ).
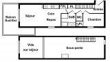
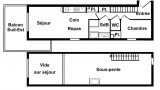
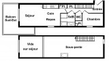
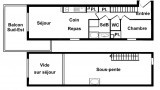
- Surface : 52 m² dont 22 m² de surface utile à moins d'1.80 m, GRAND BALCON D'ANGLE PLEIN SUD : 9 m² ,
- Etage : 2 ème,
- Accès : direct au 1er, monter un étage,
- Couchages : 4/6
- petite chambre ( inferieur à 9m²): 1 lit de 140,
- sous pente (mansardée): 1 lit 140 + 1 lit 1 pers + 1 lit tiroir,
- Salle de bains : douche, WC séparés,
- Exposition : plein sud et est, VUE FANTASTIQUE sur les pistes et le massif du BEAUFORTAIN,
- Equipements particuliers : télévision, lave vaisselle, chaîne HiFi, appareil à pierrade, cafetière électrique, grille pain, salon de jardin...
- LITERIE :7 oreillers, 6 couvertures polaires
- REMARQUES
- Un casier à skis est à votre disposition,
- Appartement tout équipé, ( non fourni : draps et linge de maison ).
In Short
- ORIENTATION :
- South orientation
- Location :
- Village center
- FLOOR FROM THE GROUND :
- 2nd floor
- OUTSIDE :
- balcony
- SURFACE :
- 30 square meters
- MAXIMUM CAPACITY :
- 6 people
- ACCOMMODATION TYPE :
- two rooms apartment
- two rooms + cabine apartment
- PETS :
- pets allowed
- Type d'hébergeur :
- Professionnel
Details
- ROOM 1 :
- 1 double bed(s) (size: 140)
- SUB-SLOPE :
- 1 drawer single bed(s)
- 1 single bed(s)
- 1 double bed(s) (size: 140)
- Bedding :
- 7 pillow(s)
- BATHROOMS :
- 1 bathroom(s) with shower
- LAVATORY :
- 1 Separate toilets
Equipments & Services
- KITCHEN EQUIPMENTS :
- fridge
- toaster
- appareil à pierrade
- EQUIPMENTS :
- ski locker
- MULTIMEDIA EQUIPMENTS :
- Hi-fi system
- BABY / CHILD :
- baby bed with extra charge
- baby chair with extra charge
- baby bath with extra charge
LIBELLE_SERV
- ASSURANCE ANNULATION :
- Pour plus de sérénité, nous vous conseillons de souscrire à notre assurance annulation proposée au moment de votre réservation.
- SERVICES :
- sheets with extra charge
- towel linen with extra charge
- ADDITIONAL SERVICES :
- sheets rental
- linen rental
- cleaning at the end of the stay
- beds made on arrival
On the Map
Destination
210 Chemin Cristal
73620
LES SAISIES
GPS coordinates
Latitude : 45.756071
Longitude : 6.537209
Rates and Availabilities
Opinion
Score on website :
(4 opinion customer)
4.25
/ 5
Opinion customer
March 2022
Fabien
De 25 à 34 ans
Entre ami(e)s
Score :
4
/ 5
Aménagement intérieur (décoration, mobilier...)
Equipements (vaisselle et ustensiles de cuisine, électroménager...)
Confort de la literie
Entretien/ propreté
Situation géographique
Rapport qualité-prix
Review written on 16/03/2022
January 2020
Nathalie
De 45 à 55 ans
En famille
Score :
4
/ 5
Aménagement intérieur (décoration, mobilier...)
Equipements (vaisselle et ustensiles de cuisine, électroménager...)
Confort de la literie
Entretien/ propreté
Situation géographique
Rapport qualité-prix
Review written on 15/01/2020
Score according to profile

































