2 rooms (1 bedroom) - MONT BLANC D (MTD409)
Presentation
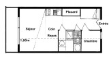
- Appartement type 2 PIECES CABINE
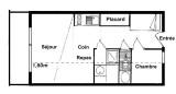
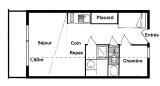
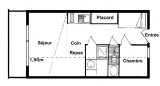
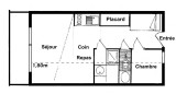
- Surface : 28.90 m² ( dont 8.90 m² de surface utile à moins d'1.80 m ), + BEAU BALCON SUD : 5.50 m² env,
- Etage : 2 ème ( l'entrée du chalet est nord, et au 1 er ),
- Couchages : 6
- séjour : 1 convertible BZ en 160,
- chambre (petite) : 1 lit de 140,
- cabine : 2 lits superposés,
- Salle de bains : douche, WC séparés,
- Exposition : plein sud avec VUE FANTASTIQUE sur les pistes et le massif du BEAUFORTAIN,
- Equipements particuliers : téléviseur, cocotte-minute, cafetière électrique...
- LITERIE : 4 couvertures 140, 4 couvertures 90, 6 oreillers.
- REMARQUES
- Appartement tout équipé, ( non fourni : draps et linge de maison ),
- Un casier à skis est à votre disposition.
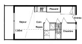
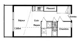
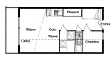
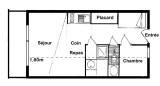
- Surface : 28.90 m² ( dont 8.90 m² de surface utile à moins d'1.80 m ), + BEAU BALCON SUD : 5.50 m² env,
- Etage : 2 ème ( l'entrée du chalet est nord, et au 1 er ),
- Couchages : 6
- séjour : 1 convertible BZ en 160,
- chambre (petite) : 1 lit de 140,
- cabine : 2 lits superposés,
- Salle de bains : douche, WC séparés,
- Exposition : plein sud avec VUE FANTASTIQUE sur les pistes et le massif du BEAUFORTAIN,
- Equipements particuliers : téléviseur, cocotte-minute, cafetière électrique...
- LITERIE : 4 couvertures 140, 4 couvertures 90, 6 oreillers.
- REMARQUES
- Appartement tout équipé, ( non fourni : draps et linge de maison ),
- Un casier à skis est à votre disposition.
In Short
- ORIENTATION : 
- South orientation
 
 - Location : 
- Village center
 
 - FLOOR FROM THE GROUND : 
- 2nd floor
 
 - OUTSIDE : 
- balcony
 
 - SURFACE : 
- 20 square meters
 
 - MAXIMUM CAPACITY : 
- 4 people
 
 - ACCOMMODATION TYPE : 
- two rooms apartment
 - two rooms + cabine apartment
 
 - PETS : 
- pets not allowed
 
 - Type d'hébergeur : 
- Professionnel
 
 
Details
- LIVING ROOM : 
- 1 Pull-out sofa BZ bed 2 pers
 
 - CABIN : 
- 2 banked beds
 
 - ROOM 1 : 
- 1 double bed(s) (size: 140)
 
 - Bedding : 
- 7.00 single cover(s)
 - 7.00 double cover(s)
 - 6 pillow(s)
 
 - BATHROOMS : 
- 1 bathroom(s) with shower
 
 - LAVATORY : 
- 1 Separate toilets
 
 
Equipments & Services
- KITCHEN EQUIPMENTS : 
- baking trays
 - fridge
 - toaster
 - pressure cooker
 
 - EQUIPMENTS : 
- ski locker
 
 - MULTIMEDIA EQUIPMENTS : 
- Free WIFI in the accommodation
 
 
LIBELLE_SERV
- ASSURANCE ANNULATION : 
- Pour plus de sérénité, nous vous conseillons de souscrire à notre assurance annulation proposée au moment de votre réservation.
 
 - ADDITIONAL SERVICES : 
- sheets rental
 - linen rental
 - cleaning at the end of the stay
 - beds made on arrival
 
 
On the Map
Destination
              320 Chemin du Cristal
  73620
  LES SAISIES
              GPS coordinates
Latitude : 45.756176
Longitude : 6.538668
- DISTANCES : 
- 130 m du centre station Les Saisies
 - 30 m des pistes de ski alpin
 - 600 m des pistes de ski de fond
 - 120 m d'un arrêt navette (en hiver)
 
 
Rates and Availabilities
Opinion
                                    Score on website :
                    
                                                        
                                                                
                                                                
                                                                    
                                                                    
                        
                        
                            
                            
                    
                                          (5  opinion customer)
                                
                3.6
                             / 5
                        Opinion customer
                                    
                                    January 2022                            
                            
                                Jean Claude                            
                            Plus de 55 ans
En couple
                            Score :
                                4
                                         / 5
                                    Aménagement intérieur (décoration, mobilier...)
Equipements (vaisselle et ustensiles de cuisine, électroménager...)
Confort de la literie
Entretien/ propreté
Situation géographique
Rapport qualité-prix
                            Review written on 26/01/2022                                                    
                                            
                                    March 2021                            
                            
                                pascal                            
                            Plus de 55 ans
En famille
                            Score :
                                4
                                         / 5
                                    Aménagement intérieur (décoration, mobilier...)
Equipements (vaisselle et ustensiles de cuisine, électroménager...)
Confort de la literie
Entretien/ propreté
Situation géographique
Rapport qualité-prix
                            Review written on 22/03/2021                                                    
                                            Score according to profile
                                    
            




































