2 rooms (1 bedroom) - MOUANDA (MOU009)
Presentation
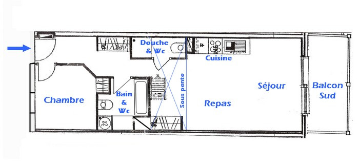
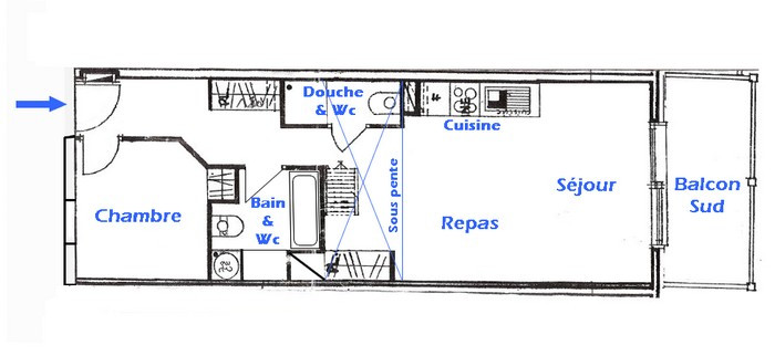
2 PIECES + SOUS PENTE aux très belles prestations
Idéalement situé au coeur des Saisies et très ensoleillé
Surface 43m² + 5m² sous pente + Balcon sud 7m²
Etage : 3ème via escaliers sans ascenseur
Accès par l'entrée Ouest du chalet
Stationnement banalisé extérieur
Couchages : 6 personnes
- séjour : 1 canapé convertible clic clac
- chambre nord : 1 lit 140
- ss pente (hmin:0.90m - hmax:1.20m sous panne et 1.60m sous toiture)(usage sous entière responsabilité des occupants, qui s'engagent à renoncer à tout type de poursuite judiciaire en cas de chute): 1 matelas 140, 1 matelas 90, accès échelle meunier, enfants interdits.
2 Salles de bains : 1 bain, 1 douche
2 wc dans chacune des salles de bains
Exposition plein Sud avec vue PANORAMIQUE sur les pistes et les montagnes
Equipements particuliers : TV, Lave vaisselle, Lave linge, four tradi, four micro-onde, plaques vitro, cafetière électrique...
Literies : 7 oreillers, 5 petites couettes, 1 grande couette
REMARQUES
Appartement toute équipé, non fournis draps et linge de maison
Un casier à ski est à votre disposition
Animaux non admis, Logement non fumeur. Internet wifi.
Idéalement situé au coeur des Saisies et très ensoleillé
Surface 43m² + 5m² sous pente + Balcon sud 7m²
Etage : 3ème via escaliers sans ascenseur
Accès par l'entrée Ouest du chalet
Stationnement banalisé extérieur
Couchages : 6 personnes
- séjour : 1 canapé convertible clic clac
- chambre nord : 1 lit 140
- ss pente (hmin:0.90m - hmax:1.20m sous panne et 1.60m sous toiture)(usage sous entière responsabilité des occupants, qui s'engagent à renoncer à tout type de poursuite judiciaire en cas de chute): 1 matelas 140, 1 matelas 90, accès échelle meunier, enfants interdits.
2 Salles de bains : 1 bain, 1 douche
2 wc dans chacune des salles de bains
Exposition plein Sud avec vue PANORAMIQUE sur les pistes et les montagnes
Equipements particuliers : TV, Lave vaisselle, Lave linge, four tradi, four micro-onde, plaques vitro, cafetière électrique...
Literies : 7 oreillers, 5 petites couettes, 1 grande couette
REMARQUES
Appartement toute équipé, non fournis draps et linge de maison
Un casier à ski est à votre disposition
Animaux non admis, Logement non fumeur. Internet wifi.
In Short
- ORIENTATION :
- South orientation
- Location :
- Village center
- FLOOR FROM THE GROUND :
- 3rd floor
- SURFACE :
- 43 square meters
- MAXIMUM CAPACITY :
- 6 people
- ACCOMMODATION TYPE :
- two rooms apartment
- two rooms + cabine apartment
- PETS :
- pets not allowed
- Type d'hébergeur :
- Professionnel
Equipments & Services
- KITCHEN EQUIPMENTS :
- dishwasher
- toaster
- EQUIPMENTS :
- washing machine
- MULTIMEDIA EQUIPMENTS :
- Free WIFI in the accommodation
LIBELLE_SERV
- ASSURANCE ANNULATION :
- Pour plus de sérénité, nous vous conseillons de souscrire à notre assurance annulation proposée au moment de votre réservation.
- ADDITIONAL SERVICES :
- sheets rental
- linen rental
- cleaning at the end of the stay
- beds made on arrival
On the Map
Destination
589 Avenue des JO
73620
HAUTELUCE
GPS coordinates
Latitude : 45.756388
Longitude : 6.542094
Rates and Availabilities
Opinion
Score on website :
(2 opinion customer)
4.5
/ 5
Opinion customer
December 2023
Aude
De 35 à 44 ans
En famille
Score :
5
/ 5
Aménagement intérieur (décoration, mobilier...)
Equipements (vaisselle et ustensiles de cuisine, électroménager...)
Confort de la literie
Entretien/ propreté
Situation géographique
Rapport qualité-prix
Review written on 01/01/2024
April 2019
Araud
De 45 à 55 ans
En famille
Score :
4
/ 5
Aménagement intérieur (décoration, mobilier...)
Equipements (vaisselle et ustensiles de cuisine, électroménager...)
Confort de la literie
Entretien/ propreté
Situation géographique
Rapport qualité-prix
Review written on 17/04/2019
Score according to profile

































