3 Room Apartment in Les Saisies - Bisanne 1500 - 5 people (17552)
Presentation
Beautiful luxury residence, 5.6km from the centre of Les Saisies, with heated indoor swimming pool (open at the height of the winter and summer seasons, located in building J).
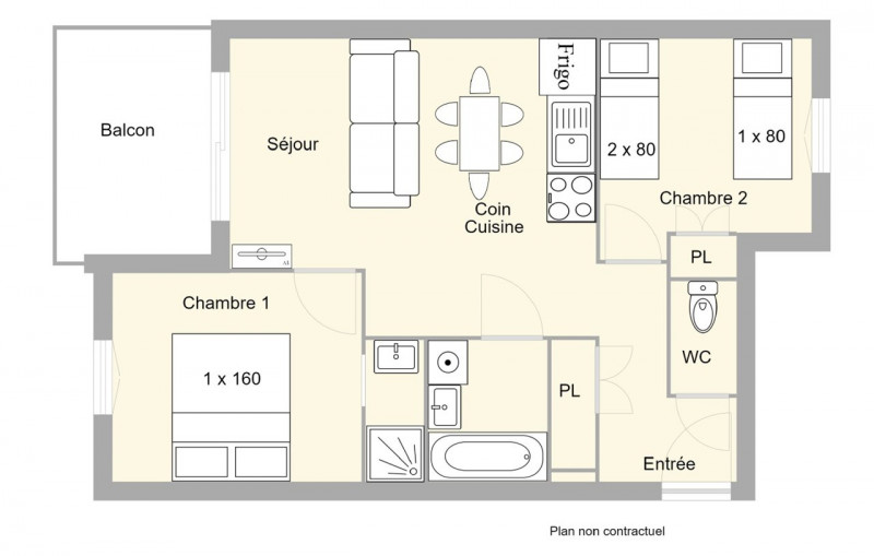
3-room apartment, located on the 2nd floor of the residence without lift, facing south-east with balcony + one covered parking space No. 4 (H.2.10m; L.5m; L.2.40m under chalet I-J/level - 2).
The apartment has a living room, a master suite with a 160cm bed and en-suite shower room, a bedroom with two 80cm bunk beds and an 80cm bed (NB: the top bunk is not suitable for children under 6), a bathroom and a separate WC.
The kitchen opens onto the living room.
This apartment is officially classed as 2-star furnished holiday accommodation (Meublé de Tourisme).
Household category: F
3-room apartment, located on the 2nd floor of the residence without lift, facing south-east with balcony + one covered parking space No. 4 (H.2.10m; L.5m; L.2.40m under chalet I-J/level - 2).
The apartment has a living room, a master suite with a 160cm bed and en-suite shower room, a bedroom with two 80cm bunk beds and an 80cm bed (NB: the top bunk is not suitable for children under 6), a bathroom and a separate WC.
The kitchen opens onto the living room.
This apartment is officially classed as 2-star furnished holiday accommodation (Meublé de Tourisme).
Household category: F
In Short
- Location :
- Bisanne 1500
- FLOOR FROM THE GROUND :
- 2nd floor
- OUTSIDE :
- balcony
- SURFACE :
- 47.5 square meters
- MAXIMUM CAPACITY :
- 5 people
- ACCOMMODATION TYPE :
- three rooms apartment
- PETS :
- pets not allowed
- VIEW :
- mountain
- Type d'hébergeur :
- Professionnel
Details
- ROOM 1 :
- 1 double bed(s) (size: 160)
- with shower
- ROOM 2 :
- 2 banked beds
- 1 single bed(s)
- Bedding :
- 6 duvet(s) single
- 1 double duvet(s)
- 8 pillow(s)
- BATHROOMS :
- 1 bathroom(s) with bathtub
- 1 bathroom(s) with shower
- LAVATORY :
- 1 Separate toilets
Equipments & Services
- KITCHEN EQUIPMENTS :
- oven
- EQUIPMENTS :
- ski locker
- vacuum cleaner
- PARKING / GARAGE :
- indoor parking included
- indoor parking with extra charge
- outdoor private parking
- outdoor public parking
- WELL-BEING :
- heated indoor swimming pool
LIBELLE_SERV
- ASSURANCE ANNULATION :
- Pour plus de sérénité, nous vous conseillons de souscrire à notre assurance annulation proposée au moment de votre réservation.
On the Map
Destination
3700 route de la Nuaz Les Rosières
Appartement 5 - 2éme étage - Bâtiment B
73270
VILLARD-SUR-DORON
GPS coordinates
Latitude : 45.738724
Longitude : 6.50801
Rates and Availabilities
Opinion
Score on website :
(5 opinion customer)
4
/ 5
Opinion customer
February 2025
Laurent
Plus de 55 ans
En famille
Score :
3
/ 5
Trop petite TV
Aménagement intérieur (décoration, mobilier...)
Equipements (vaisselle et ustensiles de cuisine, électroménager...)
Confort de la literie
Entretien/ propreté
Situation géographique
Rapport qualité-prix
Review written on 03/02/2025
21/02/2025
14h22
Elisa Maitre replied
Merci d'avoir pris le temps de partager votre retour. Nous avons bien pris en compte votre remarque et l'avons transmise au propriétaire du logement afin qu'il puisse en tenir compte. Votre avis nous aide à améliorer l'expérience de nos voyageurs. Nous espérons avoir l'occasion de vous accueillir à nouveau aux Saisies ! 😊
February 2024
gerard
Plus de 55 ans
En famille
Score :
4
/ 5
Aménagement intérieur (décoration, mobilier...)
Equipements (vaisselle et ustensiles de cuisine, électroménager...)
Confort de la literie
Entretien/ propreté
Situation géographique
Rapport qualité-prix
Review written on 26/02/2024
Score according to profile





























