3 Room Apartment in Les Saisies Bisanne 1500, 8 people (17878)
Presentation
Beautiful luxury residence, close to all amenities, 6.5km from the centre of Les Saisies, with heated indoor swimming pool (open throughout the winter and summer seasons, located in building H).
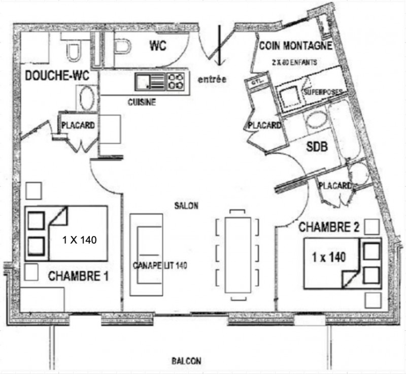
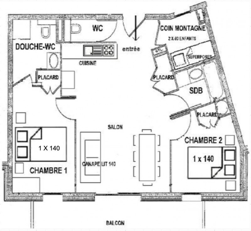
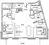
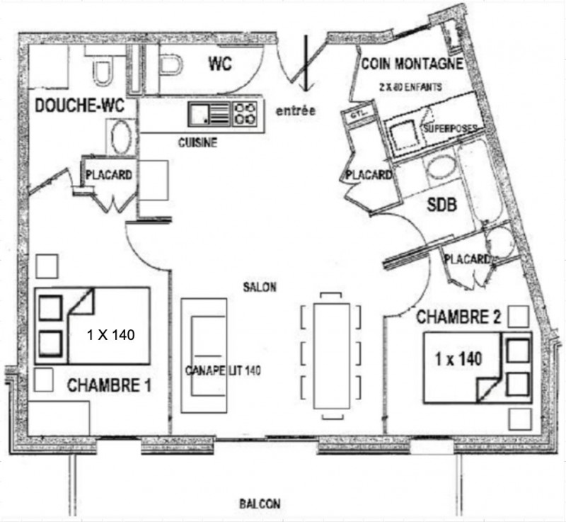
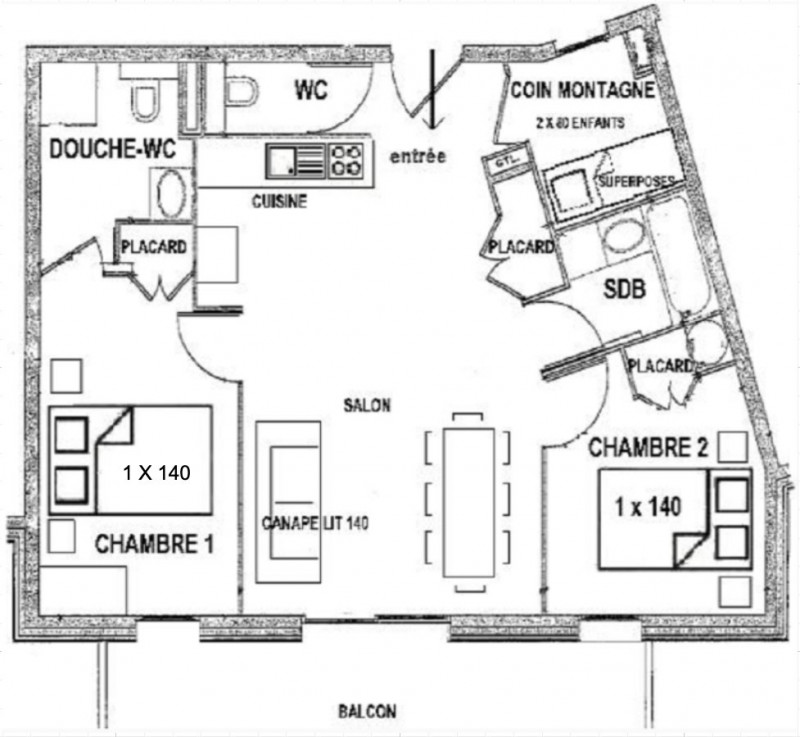
3-room apartment with sleeping cabin, located on the 2nd floor with lift (level access from the residence entrance), facing southeast with balcony + one covered parking space in building C (H.2.26m; L.5.60m; L.2.50m).
The apartment has a living room with a 140cm sofa bed, a master suite with a 140cm bed and en-suite shower room with WC, a bedroom with a 140cm bed, a cabin with two 90cm bunk beds (NB: the top bunk is not suitable for children under 6), a bathroom and a separate WC.
The kitchen opens on to the living room.
NB: Swimming pool access: 06/28/2025 to 09/03/2025 and from 12/21/2026 to 04/11/2026
Housekeeping category: H
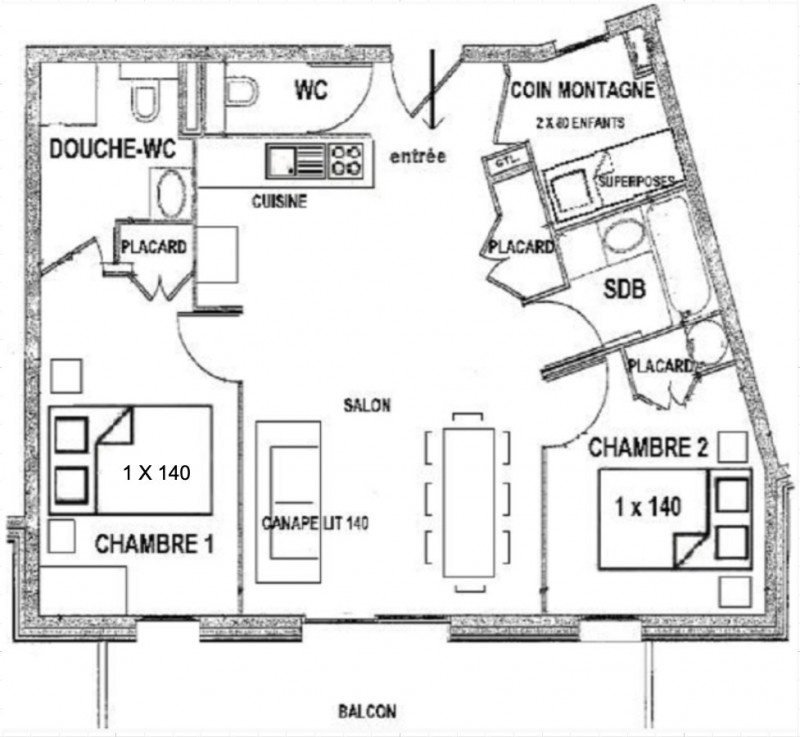
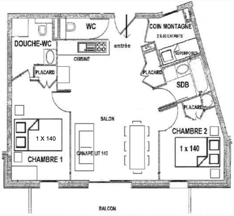
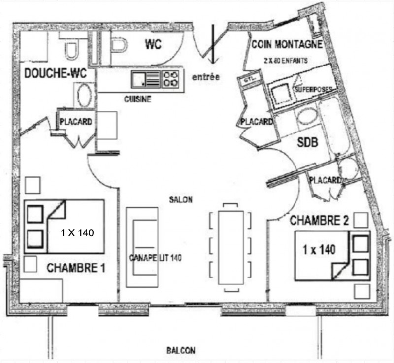
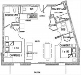
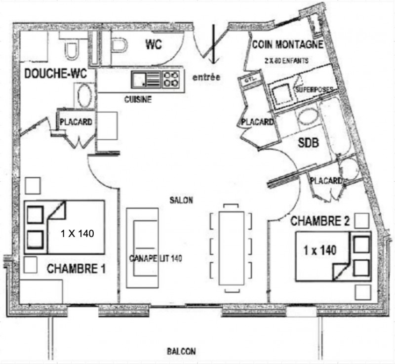
3-room apartment with sleeping cabin, located on the 2nd floor with lift (level access from the residence entrance), facing southeast with balcony + one covered parking space in building C (H.2.26m; L.5.60m; L.2.50m).
The apartment has a living room with a 140cm sofa bed, a master suite with a 140cm bed and en-suite shower room with WC, a bedroom with a 140cm bed, a cabin with two 90cm bunk beds (NB: the top bunk is not suitable for children under 6), a bathroom and a separate WC.
The kitchen opens on to the living room.
NB: Swimming pool access: 06/28/2025 to 09/03/2025 and from 12/21/2026 to 04/11/2026
Housekeeping category: H
In Short
- Location :
- Bisanne 1500
- FLOOR FROM THE GROUND :
- 2nd floor
- OUTSIDE :
- balcony
- SURFACE :
- 65 square meters
- MAXIMUM CAPACITY :
- 8 people
- ACCOMMODATION TYPE :
- three rooms apartment
- PETS :
- pets not allowed
- VIEW :
- mountain
- Type d'hébergeur :
- Professionnel
Details
- LIVING ROOM :
- 1 2-person convertible sofa bed
- CABIN :
- 2 banked beds
- ROOM 1 :
- 1 double bed(s) (size: 140)
- with shower
- ROOM 2 :
- 1 double bed(s) (size: 140)
- BATHROOMS :
- 1 bathroom(s) with bathtub
- LAVATORY :
- 1 Separate toilets
Equipments & Services
- KITCHEN EQUIPMENTS :
- dishwasher
- fridge
- EQUIPMENTS :
- ski locker
- vacuum cleaner
- PARKING / GARAGE :
- indoor parking included
- indoor parking with extra charge
- outdoor private parking
- outdoor public parking
- WELL-BEING :
- heated indoor swimming pool
LIBELLE_SERV
- ASSURANCE ANNULATION :
- Pour plus de sérénité, nous vous conseillons de souscrire à notre assurance annulation proposée au moment de votre réservation.
Destination
Route des Rosières
Appartement 11- 2 ème étage - Bâtiment C
73270
VILLARD-SUR-DORON
GPS coordinates
Latitude : 45.736762
Longitude : 6.499491































