3 room cabin apartment - Les Saisies - 9 people (23300)
Presentation
Located in the Haut Lieux area, at 500m from the resort center, this apartment is located in the Reine des Prés Chalet, which is composed of a few apartments.
At the 1st floor, this apartment is equivalent to a 2nd floor and thus benefits from a very nice view of the Beaufortain Massif and Mont Bisanne.
The ski path for downhill skiing is located about 10m of the apartment. A sport and food store as well as the Table des Armaillis restaurant (Bib Gourmand 2022) are located nearby the apartment.
Accomodation description :
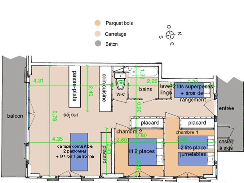
6/9 guests - 2 bedroom - 53m²
Entrance : 2 bunk beds, 1 storage drawer.
Living room : 1 sofa bed for 1 couple + 1 pull-out bed for 1 person.
Kitchen : 4-burner ceramic hob, oven, microwave, 204 l refrigerator with freezer, dishwasher, filter coffee maker.
Bedroom 1 : 2 twin beds that can be twinned.
Bedroom 2 : double bed.
In each bed : pillow + pillow protector, mattress protector, 1 blanket
Bathroom : bathtub, sink, vanity unit, washing machine, heated towel rail.
Separate toilet
South-facing : 2 deckchairs.
Private ski locker
Baby equipment, linen rental, end-of-stay cleaning can be added with extra charge.
At the 1st floor, this apartment is equivalent to a 2nd floor and thus benefits from a very nice view of the Beaufortain Massif and Mont Bisanne.
The ski path for downhill skiing is located about 10m of the apartment. A sport and food store as well as the Table des Armaillis restaurant (Bib Gourmand 2022) are located nearby the apartment.
Accomodation description :
6/9 guests - 2 bedroom - 53m²
Entrance : 2 bunk beds, 1 storage drawer.
Living room : 1 sofa bed for 1 couple + 1 pull-out bed for 1 person.
Kitchen : 4-burner ceramic hob, oven, microwave, 204 l refrigerator with freezer, dishwasher, filter coffee maker.
Bedroom 1 : 2 twin beds that can be twinned.
Bedroom 2 : double bed.
In each bed : pillow + pillow protector, mattress protector, 1 blanket
Bathroom : bathtub, sink, vanity unit, washing machine, heated towel rail.
Separate toilet
South-facing : 2 deckchairs.
Private ski locker
Baby equipment, linen rental, end-of-stay cleaning can be added with extra charge.
In Short
- Pets accepted :
- Pets not allowed
- ORIENTATION :
- South orientation
- Location :
- Hauts-Lieux district
- FLOOR FROM THE GROUND :
- 2nd floor
- OUTSIDE :
- balcony
- SURFACE :
- 53 square meters
- MAXIMUM CAPACITY :
- 9 people
- ACCOMMODATION TYPE :
- three rooms apartment
- PETS :
- pets not allowed
- VIEW :
- mountain
- Type d'hébergeur :
- Professionnel
Equipments & Services
- KITCHEN EQUIPMENTS :
- oven
- EQUIPMENTS :
- ski locker
- PARKING / GARAGE :
- indoor parking with extra charge
LIBELLE_SERV
- ASSURANCE ANNULATION :
- Pour plus de sérénité, nous vous conseillons de souscrire à notre assurance annulation proposée au moment de votre réservation.
Destination
200 Rue des Prés
1er étage - Escalier de gauche
73620
HAUTELUCE
GPS coordinates
Latitude : 45.757482
Longitude : 6.545411



























