3 rooms (2 bedrooms) - CRISTAL 6 (CRI604)
Presentation
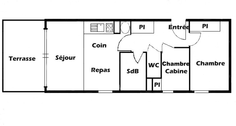
- Bel appartement type 3 PIECES,
- Surface : 37 m² , SUPERBE TERRASSE SUD avec portillon : 20 m² ,
- Etage : rez de chaussée surélevé correspondant à un 1 er étage,
- Accès : direct au 2ème, descendre deux étages,
- Couchages : 6
- séjour : 1 shogun (convertible 140),
- chambre : 1 lit de 140,
- Chambre cabine ( inferieur à 9m²) : 2 lits superposés,
- Salle de bains : baignoire, WC séparés,
- Exposition : sud et est, BELLE VUE sur les pistes et sur le massif du BEAUFORTAIN,
- Equipements particuliers : téléphone 04.79.39.98.52 fonctionnant avec la carte gratuite france télécom
( 36.10), téléviseur plat TNT, lave vaisselle, four micro-ondes, cafetière électrique, salon de jardin, transats...
- LITERIE : 6 oreillers, 3 couvertures 140, 2 couvertures 90,1 couette 140, 2 couettes 90...
- REMARQUES
- Appartement tout équipé, (non fourni : Draps et linge de maison),
- Un casier à skis est à votre disposition,
- Sur recommandation du propriétaire, un accueil très chaleureux vous sera réservé dans le magasin de sport 16I SPORTS avec une reduction de -15% sur la location du materiel de ski.
- Surface : 37 m² , SUPERBE TERRASSE SUD avec portillon : 20 m² ,
- Etage : rez de chaussée surélevé correspondant à un 1 er étage,
- Accès : direct au 2ème, descendre deux étages,
- Couchages : 6
- séjour : 1 shogun (convertible 140),
- chambre : 1 lit de 140,
- Chambre cabine ( inferieur à 9m²) : 2 lits superposés,
- Salle de bains : baignoire, WC séparés,
- Exposition : sud et est, BELLE VUE sur les pistes et sur le massif du BEAUFORTAIN,
- Equipements particuliers : téléphone 04.79.39.98.52 fonctionnant avec la carte gratuite france télécom
( 36.10), téléviseur plat TNT, lave vaisselle, four micro-ondes, cafetière électrique, salon de jardin, transats...
- LITERIE : 6 oreillers, 3 couvertures 140, 2 couvertures 90,1 couette 140, 2 couettes 90...
- REMARQUES
- Appartement tout équipé, (non fourni : Draps et linge de maison),
- Un casier à skis est à votre disposition,
- Sur recommandation du propriétaire, un accueil très chaleureux vous sera réservé dans le magasin de sport 16I SPORTS avec une reduction de -15% sur la location du materiel de ski.
In Short
- ORIENTATION :
- South orientation
- Location :
- Village center
- FLOOR FROM THE GROUND :
- Ground floor
- OUTSIDE :
- terrace
- garden furniture
- SURFACE :
- 37 square meters
- MAXIMUM CAPACITY :
- 6 people
- ACCOMMODATION TYPE :
- three rooms apartment
- three rooms + cabin apartment
- three rooms + duplex + alcove apartment
- PETS :
- pets not allowed
- RESIDENCE :
- Apartment or room number 604
- Type d'hébergeur :
- Professionnel
Details
- LIVING ROOM :
- 1 Pull-out sofa BZ bed 2 pers
- ROOM 1 :
- 1 double bed(s) (size: 140)
- ROOM 2 :
- 2 banked beds
- BATHROOMS :
- bathroom(s) with bathtub
- LAVATORY :
- Separate toilets
- DISTANCE BETWEEN SHUTTLE STOPS / TOURIST OFFICE / AQUATIC CENTER AND BOWLING :
- 0.25 metres approximately from the resort centre (Tourist Office)
Equipments & Services
- KITCHEN EQUIPMENTS :
- dishwasher
- toaster
- EQUIPMENTS :
- ski locker
- BABY / CHILD :
- baby bed with extra charge
- baby chair with extra charge
- baby bath with extra charge
LIBELLE_SERV
- ASSURANCE ANNULATION :
- Pour plus de sérénité, nous vous conseillons de souscrire à notre assurance annulation proposée au moment de votre réservation.
- ADDITIONAL SERVICES :
- sheets rental
- linen rental
- cleaning at the end of the stay
- beds made on arrival
On the Map
Destination
111 Chemin Cristal
73620
LES SAISIES
GPS coordinates
Latitude : 45.756573
Longitude : 6.537906

































