3 rooms (2 bedrooms) - NEIGE D'OR (NEOR02)
Presentation
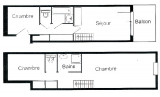
- APPARTEMENT type 3 PIECES 2 SALLES DE BAINS
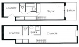
- Surface : 52.00 m² ( 24 m² au niveau inférieur, dont la hauteur sous plafond est 1.78 m), balcon sud,
- Etage : Rez-de-chaussée surélevé (équivaut à un 1er étage)
- Accès : côté nord, direct au 2ème, descendre deux étages,
- Couchages : 8
- séjour : 1 convertible BZ,
- cabine séparée du séjour par une porte : 1 lit 140 rabattable,
- chambre sud (niveau inférieur) : 1 lit de 140, 1 lit de 90,
- cabine fermée (niveau inférieur) : 1 banquette gigogne,
- 2 salles de bains : 1 douche, 1 baignoire, + 2 WC séparés,
- Exposition : plein sud avec vue sur les pistes et le massif du BEAUFORTAIN ,
- Equipements particuliers : Télévision, lave-vaisselle, grand réfrigérateur avec partie congélateur, four micro-ondes, hotte aspirante, cafetière électrique, cocotte-minute, table de jardin...
- LITERIE : 7 oreillers, 2 couettes 140, 3 couettes 90, 6 couvertures...
- REMARQUES
- Escalier d'accès aux chambres raide
- Appartement tout équipé, ( non fourni : draps et linge de maison ),
- Appartement non fumeur,
- Un casier à skis est à votre disposition .
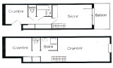
- Surface : 52.00 m² ( 24 m² au niveau inférieur, dont la hauteur sous plafond est 1.78 m), balcon sud,
- Etage : Rez-de-chaussée surélevé (équivaut à un 1er étage)
- Accès : côté nord, direct au 2ème, descendre deux étages,
- Couchages : 8
- séjour : 1 convertible BZ,
- cabine séparée du séjour par une porte : 1 lit 140 rabattable,
- chambre sud (niveau inférieur) : 1 lit de 140, 1 lit de 90,
- cabine fermée (niveau inférieur) : 1 banquette gigogne,
- 2 salles de bains : 1 douche, 1 baignoire, + 2 WC séparés,
- Exposition : plein sud avec vue sur les pistes et le massif du BEAUFORTAIN ,
- Equipements particuliers : Télévision, lave-vaisselle, grand réfrigérateur avec partie congélateur, four micro-ondes, hotte aspirante, cafetière électrique, cocotte-minute, table de jardin...
- LITERIE : 7 oreillers, 2 couettes 140, 3 couettes 90, 6 couvertures...
- REMARQUES
- Escalier d'accès aux chambres raide
- Appartement tout équipé, ( non fourni : draps et linge de maison ),
- Appartement non fumeur,
- Un casier à skis est à votre disposition .
In Short
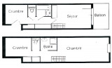
- ORIENTATION :
- South orientation
- Location :
- La traie district
- FLOOR FROM THE GROUND :
- 1st floor
- OUTSIDE :
- balcony
- SURFACE :
- 28 square meters
- MAXIMUM CAPACITY :
- 8 people
- ACCOMMODATION TYPE :
- three rooms apartment
- three rooms + cabin apartment
- three rooms + duplex + alcove apartment
- PETS :
- pets not allowed
- Type d'hébergeur :
- Professionnel
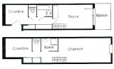
Details
- LIVING ROOM :
- 1 Pull-out sofa BZ bed 2 pers
- CABIN :
- 1 cupboard double bed(s)
- closed cabin
- ROOM 1 :
- 1 single bed(s) (size: 90)
- 1 double bed(s) (size: 140)
- ROOM 2 :
- 1 single bed(s)
- BATHROOMS :
- bathroom(s) with shower
- LAVATORY :
- Separate toilets
Equipments & Services
- KITCHEN EQUIPMENTS :
- dishwasher
- electrical kettle
- toaster
- pressure cooker
- mixer
- EQUIPMENTS :
- ski locker
- BABY / CHILD :
- baby bed with extra charge
- baby chair with extra charge
- baby bath with extra charge
LIBELLE_SERV
- ASSURANCE ANNULATION :
- Pour plus de sérénité, nous vous conseillons de souscrire à notre assurance annulation proposée au moment de votre réservation.
- ADDITIONAL SERVICES :
- sheets rental
- linen rental
- cleaning at the end of the stay
- beds made on arrival
On the Map
Destination
27/35 Rue de la Traie
73620
LES SAISIES
GPS coordinates
Latitude : 45.754600
Longitude : 6.545078































