5 Room Apartment in Les Saisies Bisanne 1500, 9 people (17570)
Presentation
Comfortable, ski-in/ski-out residence, 6.5 km from the centre of Les Saisies.
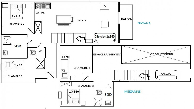
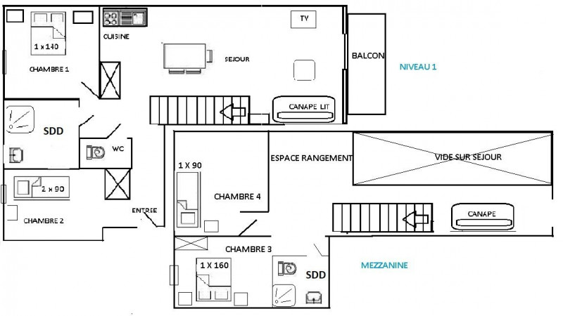
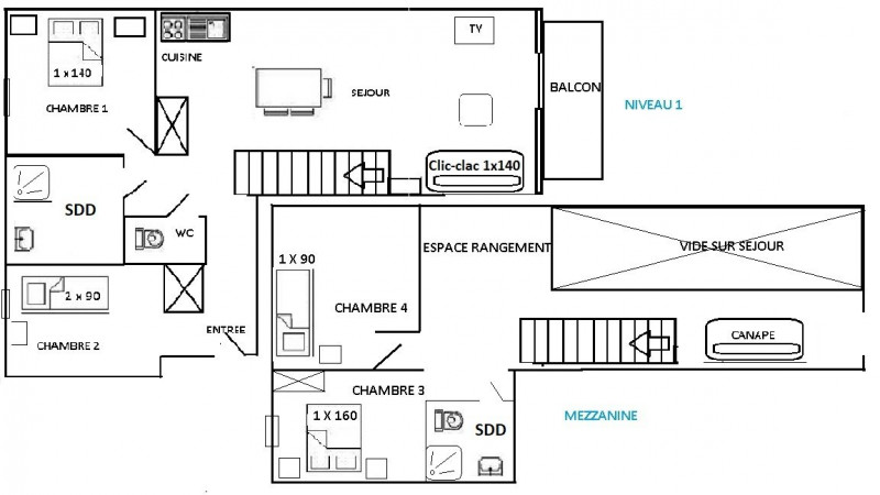
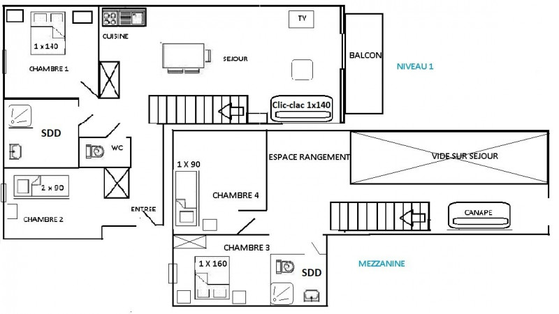
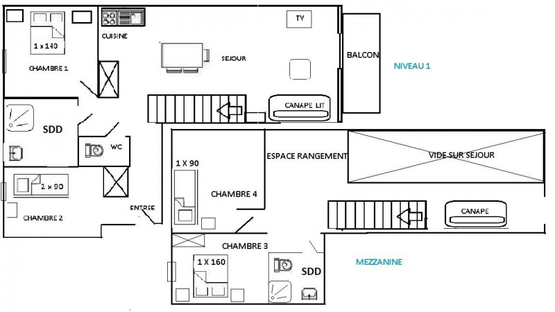
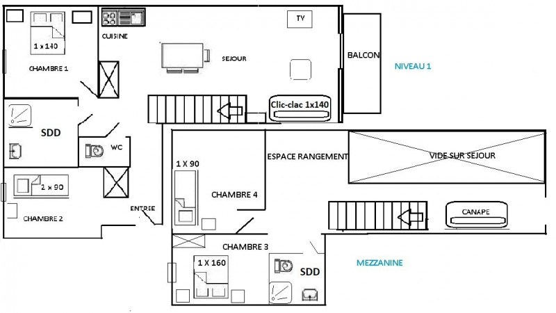
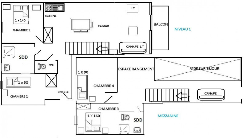
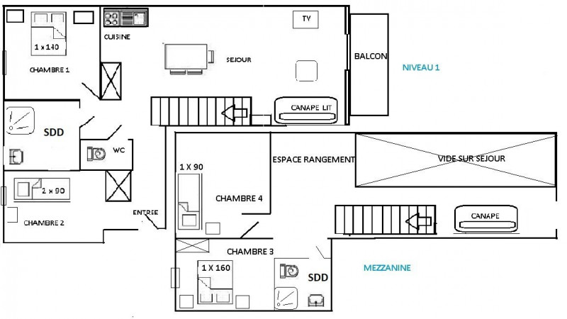
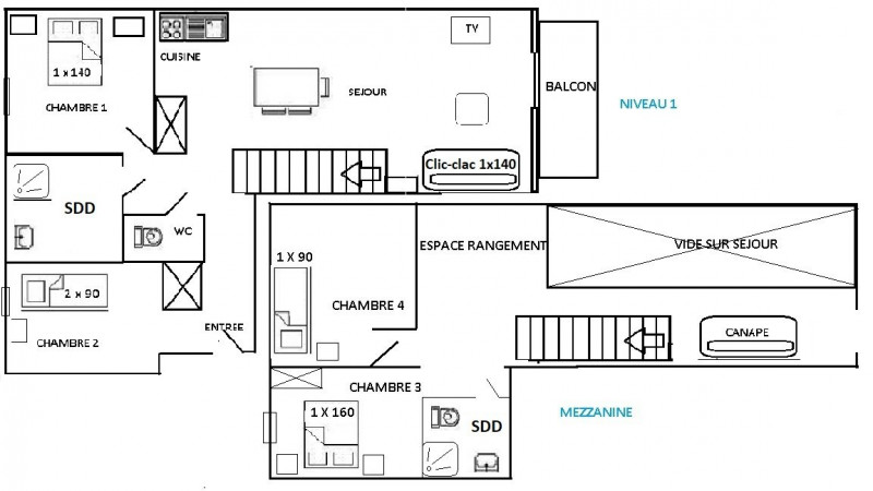
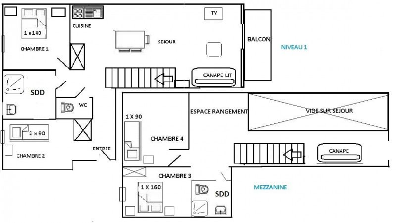
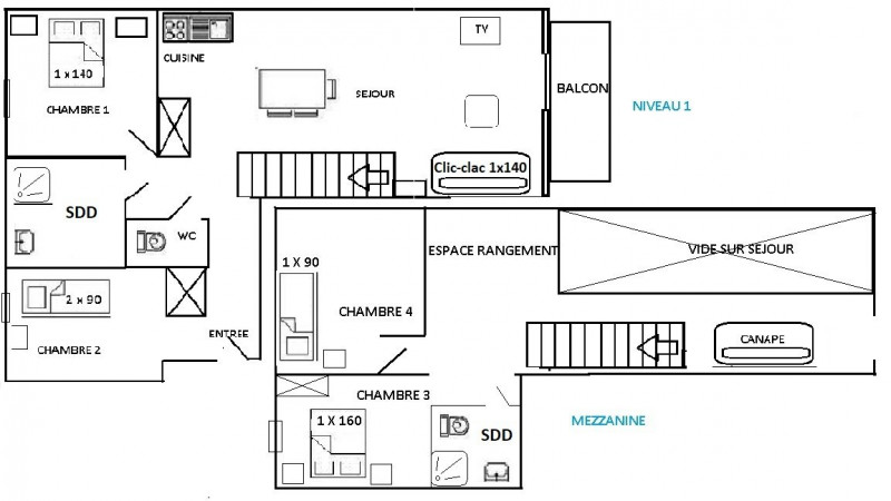
5-room apartment, located on the 1st floor without lift (level access from the residence entrance), south/east facing with balcony + one covered parking space in the building at the residence entrance (H.2.05m; L.5.30m; L.2.40m).
The apartment has a living room with a 140cm sofa bed, a bedroom with a 140cm bed, a bedroom with two 90cm bunk beds (NB: the top bunk is not suitable for children under 6), a shower room and separate WC on ground level, and on the first floor a bedroom with a 160cm bed, a downstairs bedroom with a 90cm bed and a shower room with WC.
The kitchen opens on to the living room.
Housekeeping category: J
5-room apartment, located on the 1st floor without lift (level access from the residence entrance), south/east facing with balcony + one covered parking space in the building at the residence entrance (H.2.05m; L.5.30m; L.2.40m).
The apartment has a living room with a 140cm sofa bed, a bedroom with a 140cm bed, a bedroom with two 90cm bunk beds (NB: the top bunk is not suitable for children under 6), a shower room and separate WC on ground level, and on the first floor a bedroom with a 160cm bed, a downstairs bedroom with a 90cm bed and a shower room with WC.
The kitchen opens on to the living room.
Housekeeping category: J
In Short
- Location :
- Bisanne 1500
- FLOOR FROM THE GROUND :
- 1st floor
- OUTSIDE :
- balcony
- SURFACE :
- 62 square meters
- MAXIMUM CAPACITY :
- 9 people
- ACCOMMODATION TYPE :
- five rooms + mezzanine apartment
- apartment
- PETS :
- pets not allowed
- VIEW :
- mountain
- Type d'hébergeur :
- Professionnel
Details
- LIVING ROOM :
- 1 2-person convertible sofa bed
- ROOM 1 :
- 2 banked beds
- double bed(s) (size: 140)
- ROOM 2 :
- 1 double bed(s) (size: 160)
- ROOM 3 :
- 1 double bed(s) (size: 160)
- SUB-SLOPE :
- 1 single bed(s)
- BATHROOMS :
- 2 bathroom(s) with shower
- LAVATORY :
- 1 Separate toilets
- 1 Toilets inside the bathroom
Equipments & Services
- KITCHEN EQUIPMENTS :
- oven
- EQUIPMENTS :
- ski locker
- vacuum cleaner
- PARKING / GARAGE :
- garage included (box)
- indoor parking included
- indoor parking with extra charge
- outdoor private parking
- outdoor public parking
LIBELLE_SERV
- ASSURANCE ANNULATION :
- Pour plus de sérénité, nous vous conseillons de souscrire à notre assurance annulation proposée au moment de votre réservation.
On the Map
Destination
1001 route des Rosières Les Rosières
Appartement 6 - 1er étage - bâtiment A
73270
VILLARD-SUR-DORON
GPS coordinates
Latitude : 45.738016
Longitude : 6.501659
Rates and Availabilities
Opinion
Score on website :
(1 opinion customer)
4
/ 5
Opinion customer
February 2025
Eric
Plus de 55 ans
En famille
Score :
4
/ 5
Aménagement intérieur (décoration, mobilier...)
Equipements (vaisselle et ustensiles de cuisine, électroménager...)
Confort de la literie
Entretien/ propreté
Situation géographique
Rapport qualité-prix
Review written on 10/02/2025
Score according to profile







































