Studio Apartment in Les Saisies 4 people (17441)
Presentation
Residence located in the centre of the resort, close to all amenities.
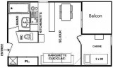
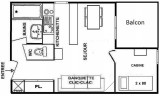
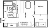
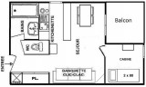
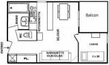
East-facing studio apartment on the 1st floor of the residence without lift (half a floor to go up for access) with balcony.
The apartment has a living room with a 140cm sofa bed and open-plan fitted kitchenette, a cabin with 2x90cm bunk beds (NB: the top bunk is not suitable for children under 6), a bathroom and separate WC.
Housekeeping category: B
East-facing studio apartment on the 1st floor of the residence without lift (half a floor to go up for access) with balcony.
The apartment has a living room with a 140cm sofa bed and open-plan fitted kitchenette, a cabin with 2x90cm bunk beds (NB: the top bunk is not suitable for children under 6), a bathroom and separate WC.
Housekeeping category: B
In Short
- ORIENTATION :
- East orientation
- Location :
- Village center
- FLOOR FROM THE GROUND :
- 1st floor
- OUTSIDE :
- balcony
- SURFACE :
- 25 square meters
- MAXIMUM CAPACITY :
- 4 people
- ACCOMMODATION TYPE :
- one room apartment
- PETS :
- pets not allowed
- Type d'hébergeur :
- Professionnel
Details
- LIVING ROOM :
- 1 2-person convertible sofa bed
- CABIN :
- 2 banked beds
- Bedding :
- 4 single cover(s)
- 1 double duvet(s)
- 4 pillow(s)
- BATHROOMS :
- 1 bathroom(s) with bathtub
- LAVATORY :
- 1 Separate toilets
Equipments & Services
- KITCHEN EQUIPMENTS :
- fridge
- EQUIPMENTS :
- ski locker
- vacuum cleaner
- PARKING / GARAGE :
- indoor parking with extra charge
LIBELLE_SERV
- ASSURANCE ANNULATION :
- Pour plus de sérénité, nous vous conseillons de souscrire à notre assurance annulation proposée au moment de votre réservation.
On the Map
Destination
311 Av des JO
Appartement 7 - 1er étage - Bâtiment C
73620
LES SAISIES
GPS coordinates
Latitude : 45.757611
Longitude : 6.5389
Rates and Availabilities
Opinion
Score on website :
(2 opinion customer)
3.5
/ 5
Opinion customer
February 2025
Martine
Plus de 55 ans
En famille
Score :
4
/ 5
Aménagement intérieur (décoration, mobilier...)
Equipements (vaisselle et ustensiles de cuisine, électroménager...)
Confort de la literie
Entretien/ propreté
Situation géographique
Rapport qualité-prix
Review written on 03/02/2025
February 2024
BASTIEN
De 35 à 44 ans
En famille
Score :
3
/ 5
Aménagement intérieur (décoration, mobilier...)
Equipements (vaisselle et ustensiles de cuisine, électroménager...)
Confort de la literie
Entretien/ propreté
Situation géographique
Rapport qualité-prix
Review written on 19/02/2024
Score according to profile





























