Studio apartment in Les Saisies 4 people (17554)
Presentation
Small residence located in the Carrets area, 400m from a ski lift, mini-market and sports shop at the entrance to the Route de la Traie.
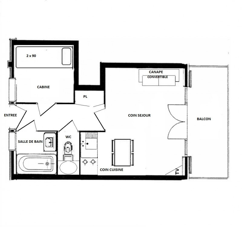
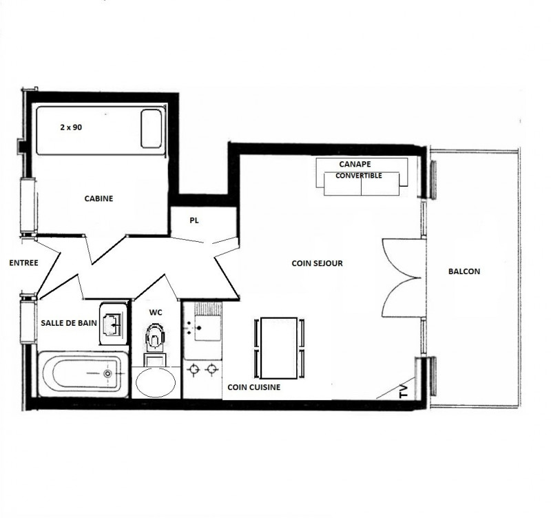
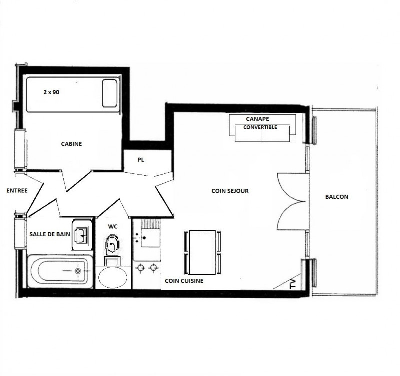
Studio flat on the 1st floor of the residence without lift (two floors to climb), south-facing with balcony.
The studio has a living room with a 140cm sofa bed, a fully-equipped kitchenette, a cabin with 2 x 290cm bunk beds (NB: the top bunk bed is not suitable for children under 6), a bathroom and a separate WC.
Housekeeping category: B
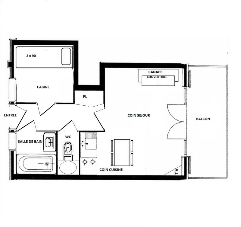
Studio flat on the 1st floor of the residence without lift (two floors to climb), south-facing with balcony.
The studio has a living room with a 140cm sofa bed, a fully-equipped kitchenette, a cabin with 2 x 290cm bunk beds (NB: the top bunk bed is not suitable for children under 6), a bathroom and a separate WC.
Housekeeping category: B
In Short
- ORIENTATION :
- South orientation
- Location :
- La traie district
- FLOOR FROM THE GROUND :
- 1st floor
- OUTSIDE :
- balcony
- SURFACE :
- 22 square meters
- MAXIMUM CAPACITY :
- 4 people
- ACCOMMODATION TYPE :
- one room apartment
- PETS :
- pets not allowed
- Type d'hébergeur :
- Professionnel
Equipments & Services
- KITCHEN EQUIPMENTS :
- oven
- EQUIPMENTS :
- ski locker
- vacuum cleaner
- PARKING / GARAGE :
- indoor parking with extra charge
LIBELLE_SERV
- ASSURANCE ANNULATION :
- Pour plus de sérénité, nous vous conseillons de souscrire à notre assurance annulation proposée au moment de votre réservation.
On the Map
Destination
171 Route de la Traie
Appartement 7 - 1er étage
73620
LES SAISIES
GPS coordinates
Latitude : 45.754293
Longitude : 6.543372
Rates and Availabilities
Opinion
Score on website :
(1 opinion customer)
3
/ 5
Opinion customer
March 2023
MICHAEL
Score :
3
/ 5
Aménagement intérieur (décoration, mobilier...)
Equipements (vaisselle et ustensiles de cuisine, électroménager...)
Confort de la literie
Entretien/ propreté
Situation géographique
Rapport qualité-prix
Review written on 06/03/2023
Score according to profile





























