Studio Apartment in Les Saisies 5 people (17598)
Presentation
Small residence located at the bottom of the resort, just off the main avenue, close to the Carrets chairlifts and ESF meetings. Sports shop and mini-market nearby.
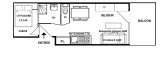
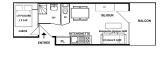
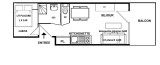
Studio apartment with cabin, located on the 1st floor of the residence without lift (1 1/2 floors to go down), south-facing with balcony.
The apartment has a living room with a 2x80 pull-out sofa bed, an 80cm fold-down bunk bed (NB: the top bunk bed is not suitable for children under 6) and an open-plan fully-equipped kitchenette, a cabin with a 140cm fold-down bed, a shower room and a separate WC.
This apartment has a 2-star furnished tourist accommodation classification.
Housekeeping category: C
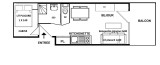
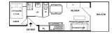
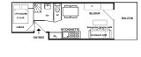
Studio apartment with cabin, located on the 1st floor of the residence without lift (1 1/2 floors to go down), south-facing with balcony.
The apartment has a living room with a 2x80 pull-out sofa bed, an 80cm fold-down bunk bed (NB: the top bunk bed is not suitable for children under 6) and an open-plan fully-equipped kitchenette, a cabin with a 140cm fold-down bed, a shower room and a separate WC.
This apartment has a 2-star furnished tourist accommodation classification.
Housekeeping category: C
In Short
- ORIENTATION :
- South orientation
- Location :
- La traie district
- FLOOR FROM THE GROUND :
- 1st floor
- OUTSIDE :
- balcony
- SURFACE :
- 24 square meters
- MAXIMUM CAPACITY :
- 5 people
- ACCOMMODATION TYPE :
- one room apartment
- PETS :
- pets not allowed
- Type d'hébergeur :
- Professionnel
Details
- LIVING ROOM :
- 1 rabattable banked beds
- 1 Pull-out trundle sofa bed 2 pers.
- CABIN :
- 1 double bed(s) (size: 140)
- BATHROOMS :
- 1 bathroom(s) with shower
- LAVATORY :
- 1 Separate toilets
Equipments & Services
- EQUIPMENTS :
- ski locker
- vacuum cleaner
- PARKING / GARAGE :
- indoor parking with extra charge
LIBELLE_SERV
- ASSURANCE ANNULATION :
- Pour plus de sérénité, nous vous conseillons de souscrire à notre assurance annulation proposée au moment de votre réservation.
Destination
27/35 Route de la Traie
Appartement 12 - 1er étage - Bâtiment A
73620
LES SAISIES
GPS coordinates
Latitude : 45.754608
Longitude : 6.545047
Rates and Availabilities
Opinion
Score on website :
(2 opinion customer)
3.5
/ 5
Opinion customer
February 2024
Philippe
De 45 à 55 ans
En famille
Score :
4
/ 5
Aménagement intérieur (décoration, mobilier...)
Equipements (vaisselle et ustensiles de cuisine, électroménager...)
Confort de la literie
Entretien/ propreté
Situation géographique
Rapport qualité-prix
Review written on 19/02/2024
January 2024
CORINNE PATRICK
Plus de 55 ans
En famille
Score :
3
/ 5
Aménagement intérieur (décoration, mobilier...)
Equipements (vaisselle et ustensiles de cuisine, électroménager...)
Confort de la literie
Entretien/ propreté
Situation géographique
Rapport qualité-prix
Review written on 30/01/2024
Score according to profile





























