Studio - GRAND MONT 1 (GM1110)
Presentation
- Accès : par l'avenue des JO escalier de 2 étages, par la rue des périots 50 m,
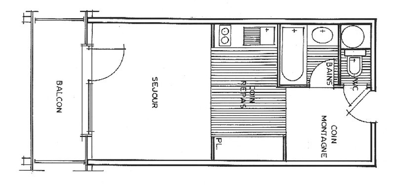
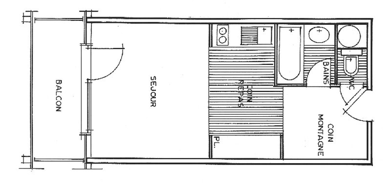
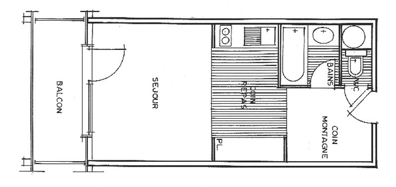
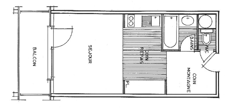
- Appartement type studio cabine
- Surface : 23 m², BALCON PLEIN SUD : 5 m²,
- Etage : 2ème (sur commerces) équivalent à un 3ème,
- Couchages : 4
- séjour : 1 banquette gigogne,
- cabine ouverte (séparée du séjour par un rideau) : 2 lits superposés,
- Salle de bains : douche, WC séparés,
- Exposition : PLEIN SUD avec UNE JOLIE VUE sur les pistes et le massif du BEAUFORTAIN ,
- Equipements particuliers : téléviseur, micro-ondes, cocotte minute, service à fondue, cafetière électrique, salon de jardin...
- LITERIE : 4 couvertures 90 ,5 oreillers...
- REMARQUES
- Appartement tout équipé, ( non fourni : draps et linge de maison ),
- Un casier à skis est à votre disposition,
- Appartement sans moquette,
- Appartement non fumeur.
- Appartement type studio cabine
- Surface : 23 m², BALCON PLEIN SUD : 5 m²,
- Etage : 2ème (sur commerces) équivalent à un 3ème,
- Couchages : 4
- séjour : 1 banquette gigogne,
- cabine ouverte (séparée du séjour par un rideau) : 2 lits superposés,
- Salle de bains : douche, WC séparés,
- Exposition : PLEIN SUD avec UNE JOLIE VUE sur les pistes et le massif du BEAUFORTAIN ,
- Equipements particuliers : téléviseur, micro-ondes, cocotte minute, service à fondue, cafetière électrique, salon de jardin...
- LITERIE : 4 couvertures 90 ,5 oreillers...
- REMARQUES
- Appartement tout équipé, ( non fourni : draps et linge de maison ),
- Un casier à skis est à votre disposition,
- Appartement sans moquette,
- Appartement non fumeur.
In Short
- ORIENTATION :
- South orientation
- Location :
- Village center
- FLOOR FROM THE GROUND :
- 2nd floor
- OUTSIDE :
- balcony
- garden furniture
- SURFACE :
- 23 square meters
- MAXIMUM CAPACITY :
- 4 people
- PETS :
- pets allowed
- Housing type :
- Studio
- Type d'hébergeur :
- Professionnel
Details
- LIVING ROOM :
- 1 Pull-out trundle sofa bed 2 pers.
- CABIN :
- 2 banked beds
- BATHROOMS :
- bathroom(s) with shower
- LAVATORY :
- Separate toilets
- DISTANCE BETWEEN SHUTTLE STOPS / TOURIST OFFICE / AQUATIC CENTER AND BOWLING :
- 0.10 metres approximately from the resort centre (Tourist Office)
Equipments & Services
- KITCHEN EQUIPMENTS :
- toaster
- pressure cooker
- Fondue equipment
- EQUIPMENTS :
- ski locker
- BABY / CHILD :
- baby bed with extra charge
- baby chair with extra charge
- baby bath with extra charge
LIBELLE_SERV
- ASSURANCE ANNULATION :
- Pour plus de sérénité, nous vous conseillons de souscrire à notre assurance annulation proposée au moment de votre réservation.
- ADDITIONAL SERVICES :
- sheets rental
- linen rental
- cleaning at the end of the stay
- beds made on arrival
On the Map
Destination
199 Avenue des JO
73620
LES SAISIES
GPS coordinates
Latitude : 45.757957
Longitude : 6.537659
Rates and Availabilities
Opinion
Score on website :
(4 opinion customer)
4.25
/ 5
Opinion customer
February 2025
remi
De 35 à 44 ans
Entre ami(e)s
Score :
4
/ 5
+ de lumière dans le local à ski
Une meilleure description du matériel dans l'appartement (machine cafe, fondue, raclette).
Dans l'ensemble satisfait +.
Aménagement intérieur (décoration, mobilier...)
Equipements (vaisselle et ustensiles de cuisine, électroménager...)
Confort de la literie
Entretien/ propreté
Situation géographique
Rapport qualité-prix
Review written on 04/02/2025
21/02/2025
14h09
Elisa Maitre replied
Merci d'avoir pris le temps de partager votre retour. Nous avons bien pris en compte votre remarque et l'avons transmise au propriétaire du logement afin qu'il puisse en tenir compte. Votre avis nous aide à améliorer l'expérience de nos voyageurs. Nous espérons avoir l'occasion de vous accueillir à nouveau aux Saisies ! 😊
April 2022
Sophie
Plus de 55 ans
Score :
5
/ 5
Très bien placé et bien équipé
Aménagement intérieur (décoration, mobilier...)
Equipements (vaisselle et ustensiles de cuisine, électroménager...)
Confort de la literie
Entretien/ propreté
Situation géographique
Rapport qualité-prix
Review written on 09/04/2022
Score according to profile

























