Studio - GRAND MONT 3 (GM3315)
Presentation
Beau studio cabine, pratique, carrelé, rénové et très ensoleillé.
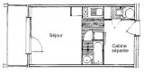
Surface 21m² + Balcon 4m²
Etage : Second.
Couchages : 2/4
- Cabine séparée du séjour par une porte: 2 lits superposés,
- Séjour: 1 canapé convertible type BZ.
énové,
Sanitaires : Douche + Wc séparés
Orientation : Sud, vue panoramique sur les montagnes, les pistes et le Massif du Beaufortain.
EQUIPEMENTS PARTICULIERS: TV, four traditionnel, four micro-ondes, fromage party (raclette et fondue), cafetière électrique, bouilloire, aspirateur, table et chaises de balcon, pelle à neige...
LITERIE : 4 oreillers, 6 couvertures.
REMARQUES: Appartement tout équipé, (non fourni : draps et linge de maison), Interdiction de dormir à même la literie, un casier à skis est à votre disposition. Stationnement copropriété banalisés extérieur.
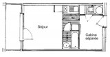
Surface 21m² + Balcon 4m²
Etage : Second.
Couchages : 2/4
- Cabine séparée du séjour par une porte: 2 lits superposés,
- Séjour: 1 canapé convertible type BZ.
énové,
Sanitaires : Douche + Wc séparés
Orientation : Sud, vue panoramique sur les montagnes, les pistes et le Massif du Beaufortain.
EQUIPEMENTS PARTICULIERS: TV, four traditionnel, four micro-ondes, fromage party (raclette et fondue), cafetière électrique, bouilloire, aspirateur, table et chaises de balcon, pelle à neige...
LITERIE : 4 oreillers, 6 couvertures.
REMARQUES: Appartement tout équipé, (non fourni : draps et linge de maison), Interdiction de dormir à même la literie, un casier à skis est à votre disposition. Stationnement copropriété banalisés extérieur.
In Short
- ORIENTATION :
- South orientation
- Location :
- Village center
- FLOOR FROM THE GROUND :
- 2nd floor
- OUTSIDE :
- balcony
- SURFACE :
- 22 square meters
- MAXIMUM CAPACITY :
- 4 people
- PETS :
- pets allowed
- Housing type :
- Studio
- Type d'hébergeur :
- Professionnel
Details
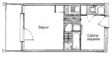
- LIVING ROOM :
- 1 Pull-out sofa BZ bed 2 pers
- CABIN :
- 2 banked beds
- closed cabin
- Bedding :
- 3.00 single cover(s)
- 3.00 double cover(s)
- BATHROOMS :
- 1 bathroom(s) with shower
- LAVATORY :
- 1 Separate toilets
- DISTANCE BETWEEN SHUTTLE STOPS / TOURIST OFFICE / AQUATIC CENTER AND BOWLING :
- 0.50 metres approximately from the resort centre (Tourist Office)
Equipments & Services
- KITCHEN EQUIPMENTS :
- baking trays
- fridge
- electrical kettle
- appareil à raclette
- appareil à fondue
- EQUIPMENTS :
- ski locker
- BABY / CHILD :
- baby bed with extra charge
- baby chair with extra charge
- baby bath with extra charge
LIBELLE_SERV
- ASSURANCE ANNULATION :
- Pour plus de sérénité, nous vous conseillons de souscrire à notre assurance annulation proposée au moment de votre réservation.
- ADDITIONAL SERVICES :
- sheets rental
- linen rental
- cleaning at the end of the stay
- beds made on arrival
On the Map
Destination
221 Avenue des Cimes
73620
LES SAISIES
GPS coordinates
Latitude : 45.758526
Longitude : 6.537981
Rates and Availabilities
Opinion
Score on website :
(3 opinion customer)
4
/ 5
Opinion customer
March 2021
Moulay Ismael
De 25 à 34 ans
En famille
Score :
4
/ 5
Aménagement intérieur (décoration, mobilier...)
Equipements (vaisselle et ustensiles de cuisine, électroménager...)
Confort de la literie
Entretien/ propreté
Situation géographique
Rapport qualité-prix
Review written on 02/06/2021
February 2021
Rodolphe
De 45 à 55 ans
En couple
Score :
4
/ 5
Aménagement intérieur (décoration, mobilier...)
Equipements (vaisselle et ustensiles de cuisine, électroménager...)
Confort de la literie
Entretien/ propreté
Situation géographique
Rapport qualité-prix
Review written on 23/03/2021
Score according to profile





















